Charmerende kontor med højt til loftet i Ringgade Centret
34.650 kr.
Beboelsesvogne fra Simple Homes
Udlejning til bl.a. privatgenhusning - høj service og hurtig levering
UDLEJNING AF BEBOELSESVOGNE
Vi udlejer vogne, lifte, Mobile badeværelser, Mandskabsvogne og Kontor-/spisevogne
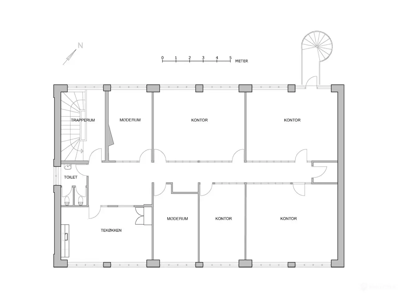
Byggeselskab Mogens de Linde kan nu præsentere et charmerende og højloftet kontorlejemål i Ringgade Centret beliggende på Jens Baggesens Vej, Aarhus N. Ringgade Centret er en samling af bygninger som tidligere har fungeret som produktionshal og administration for de Forenede Mejerier i årene 1955-1958. I dag produceres der ikke længere mælk på adressen, men bygningerne danner i stedet hjemsted for en lang række andre typer af erhverv, såsom kiropraktisk klinik, speciallægepraksis, fitness samt andre liberale erhverv **Område** Ringgade Centret er særdeles centralt placeret ved Aarhus’ mest befærdede færdselsåre, Vestre Ringgade, som udgør en del af det centrale indre ringgadesystem omkring Aarhus bymidte. Mere end 30.000 biler passerer dagligt Ringgade Centret. Ejendommen er beliggende i et erhvervs- og kulturelt orienteret byområde, der rummer erhvervsvirksomheder, Storcenter Nord, Aarhus Universitet, Handelshøjskolen og Forskerparken foruden privat beboelse. Parkeringspladser kan tillejes lejemålet, alle med adgang fra Jens Baggesens Vej og Hangøvej. Fra lejemålet er der kort afstand til bymidten og let adgang til alle udfaldsvejene samt motorveje, ligesom der er bybusforbindelser og letbane indenfor gåafstand. **Ejendommen** Ringgade Centret er opført som fem forskellige bygningsafsnit, der alle er placeret i facadelinjen mod Ringgaden. I arkitektonisk henseende fremtræder de som en harmonisk helhed med ens facadefarve. Bygningerne er opmuret i gode danske teglsten, ligesom byggeriet i øvrigt er udført under anvendelse af sunde, naturlige materialer. Parkeringsarealer er placeret langs bygningernes anden facade mod Jens Baggesens Vej, hvor der i øjeblikket opføres en spritny parkeringskælder samt boliglejemål. **Lejemålet** Med præsentabelt indgangsparti bydes ny lejer velkommen i det 360 m² højloftede kontorlejemål, hvor bl.a. et gammelt charmerende vindue og genbrugstømmer er med til at pryde omgivelserne. Lejemålet er inddelt i to etager, henholdsvis 73 m² og 287 m² på øverste plan. Indvendigt byder lejemålet på flere kontorer i forskellige størrelser, møderum, tekøkken samt toiletfaciliteter. Fælles for alle er massive egetrægulve, en fantastisk lofthøjde og store vinduespartier som sikrer et naturligt lysindfald. Lejemålet overtages nyistandsat efter nærmere aftale. Lejemålets energimærke er angivet til: D
Flere detaljer















Ny





