Veleksponeret og markant kontorlejemål med højt til loftet ved ydre Ringvej
60.246 kr.
Beboelsesvogne fra Simple Homes
Udlejning til bl.a. privatgenhusning - høj service og hurtig levering
UDLEJNING AF BEBOELSESVOGNE
Vi udlejer vogne, lifte, Mobile badeværelser, Mandskabsvogne og Kontor-/spisevogne
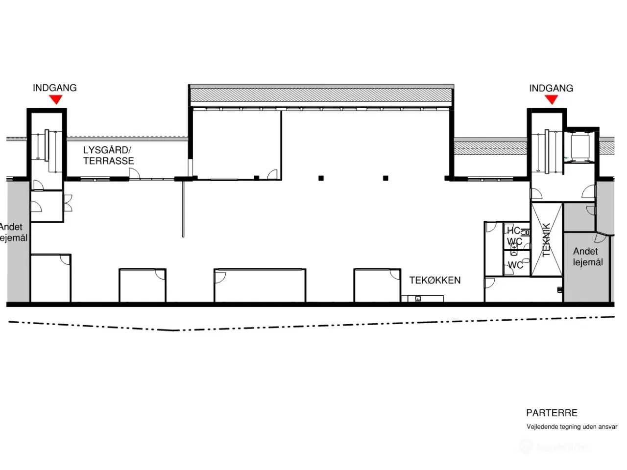
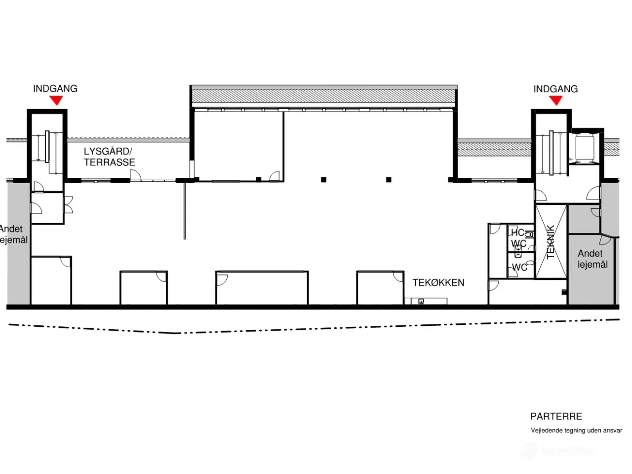
Er du på udkig efter et prominent kontorlejemål med høj reklameværdi? Byggeselskab Mogens de Linde udbyder nu lyse og rummelige kontorlejemål i den Aarhus-kendte murstensejendom ved krydset mellem ydre Ringgade og Paludan-Müllers Vej. Området Ejendommen har en yderst attraktiv beliggenhed midt imellem Aarhus C og Skejby. Lejere vil nyde godt af stor eksponering mod hovedvejene Paludan-Müllers Vej og ydre Ringvej hvor der dagligt passerer mere end 30.000 biler, hvilket sikrer synlighed og tilgængelighed. Desuden er ejendommen i nærheden af IT-byen Katrinebjerg, som huser en række førende IT-virksomheder samt Journalisthøjskolen og Aarhus Universitet. Skejby Business Park, det største erhvervsområde uden for Aarhus C, ligger også inden for kort afstand. Motorvej Aarhus Syd og E45 er blot 6 min. i bil fra ejendommen. Ejendommens placering sikrer hurtig adgang til det overordnede vejnet i Aarhus, og der er gode busforbindelser med bus 2A og 6A, hvoraf sidstnævnte har stoppested lige ved siden af ejendommen og afgange hvert tiende minut. Ejendommen Ejendommen er opført i 1999 som domicil til den danske fabrikant af vindmøller ”Vestas Wind Systems”. I dag huser ejendommen bl.a. Bygningsstyrelsen, Laros Ejendomsadministration og Min Bolig Handel. Ejendommen er med sin langstrakte facade mod Ringgaden, udført i gule mursten og mørk hårdttræsbeklædning, en markant og kendt ejendom i Aarhus. Ejendommen er udformet med to sidefløje der udspringer fra et cirkulært indgangsparti og har fladt tag med tagudhæng udført i sort aluminium. Hele ejendommen fremstår udvendigt i nydelig og vel vedligeholdt stand. Lejemålet Ejendommens ledige lokaler har tidligere været anvendt til undervisning, hvilket stadig er synligt i dag. Før en ny lejer flytter ind, vil lokalerne gennemgå en renovering. Se visualiseringer der er lavet for anden etage. Den endelige indretning af mødelokaler, køkken og lette skillevægge i lejemålet kan delvist tilpasses efter ny lejers ønsker. Den nye lejer kan se frem til at etablere sin virksomhed i en ejendom med et sundt indeklima, understøttet af moderne airconditionanlæg. Lofthøjden er ekstra høj i parterren. De mange vinduespartier sikrer rigelig dagslys i hele ejendommen, og i parterre er der endda indrettet lysgårde for at maksimere indfaldet af naturligt lys. Alt i alt er det en attraktiv ejendom med mange indretningsmuligheder. Der er mulighed for cykelparkering i et overdækket cykelområde, og p-pladser kan lejes efter behov. Hurtig overtagelse er mulig. Lejemålets energimærke er angivet til: A2010
Flere detaljer






















