Stemningsfuldt kontorlejemål i Elvirasminde
30.975 kr.
Beboelsesvogne fra Simple Homes
Udlejning til bl.a. privatgenhusning - høj service og hurtig levering
UDLEJNING AF BEBOELSESVOGNE
Vi udlejer vogne, lifte, Mobile badeværelser, Mandskabsvogne og Kontor-/spisevogne
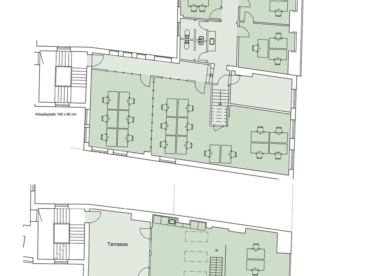
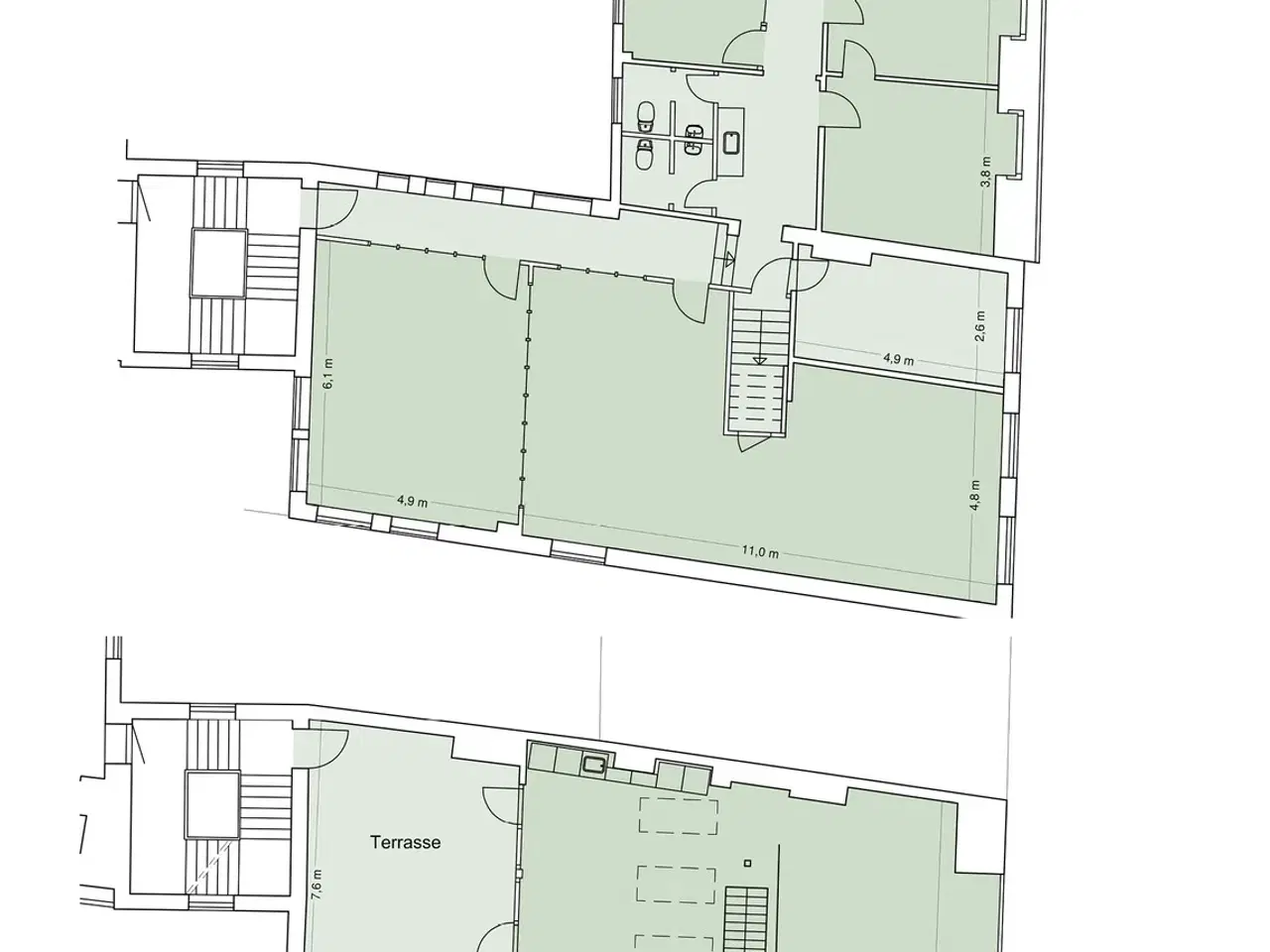
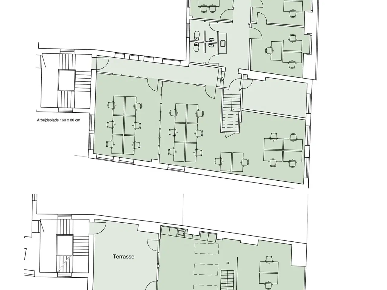
**Velbeliggende lejemål i to etager med lys, sjæl og inspirerende omgivelser i den gamle chokoladefabrik.** - Egen tagterrasse på 42 m² med udsigt over byen - Fleksibel indretning - Inspirerende og kreativt miljø - Central placering og tæt på offentlig transport I den tidligere Elvirasminde Chokoladefabrik finder du dette charmerende kontorlejemål på 354 m², fordelt på 3. og 4. sal. Her får du en arbejdsplads med sjæl, karakter og en atmosfære, der emmer af kreativitet. Lejemålet er indrettet med tre lyse storrumskontorer, tre mindre kontor- og møderum, to depotrum, tekøkken og to toiletter på 3. sal. Øverst ligger en indbydende etage, hvor du kan samle kolleger eller gæster i uformelle rammer. Her er både køkken og udgang til din egen tagterrasse på 42 m² – et oplagt sted til frokost, møder i det fri eller et pusterum med udsigt over byens tage. Materialerne er holdt i lyse toner, og de oprindelige detaljer som bjælker og murværk bidrager til en varm og ærlig stemning. Et fleksibelt og funktionelt kontorlejemål, der giver plads til både fordybelse og fællesskab. Den tidligere chokoladefabrik Elvirasminde er et af Aarhus’ mest karakterfulde erhvervsmiljøer, hvor historien om byens industri møder nutidens kreative energi. Bag de røde murstensfacader finder du et levende hus med designere, arkitekter og kunstnere, der tilsammen skaber et inspirerende fællesskab. Ejendommen ligger centralt i Aarhus C med kort afstand til både offentlig transport, byens caféer og havnen. Som lejer bliver du en del af et miljø, hvor kvalitet, funktionalitet og respekt for bygningens historie går hånd i hånd. Lejemålets energimærke er angivet til: C
Flere detaljer


























Ny




