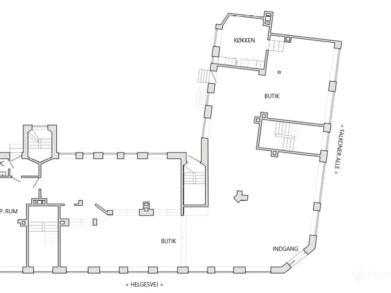
Butikslokale på Falkoner Allé – i hjertet af Frederiksberg
61.950 kr.
Beboelsesvogne fra Simple Homes
Udlejning til bl.a. privatgenhusning - høj service og hurtig levering
UDLEJNING AF BEBOELSESVOGNE
Vi udlejer vogne, lifte, Mobile badeværelser, Mandskabsvogne og Kontor-/spisevogne
Velkommen til 300 m² butikslejemål på Falkoner Allé 41 – en af bydelens mest centrale og pulserende hovedgader. Lokalet ligger i gadeplan og byder på et stort, lyst og indbydende rum med gulv-til-loft vinduer, der giver masser af naturligt lys og en åben atmosfære. Her får du fleksible rammer, hvor du kan realisere dit butikskoncept – uanset om det er mode, interiør eller noget helt tredje. Lejemålet er opdelt i flere områder, der giver gode muligheder for både præsentation og indretning. En mindre trappe fører op til et ekstra afsnit, mens et andet område er oplagt til f.eks. prøverum. Vinduer mod gården understøtter den lyse stemning. Derudover har lejemålet eget køkken og toilet. Placeringen er optimal – midt på Falkoner Allé, et område fyldt med liv, hyggelige caféer, kaffebarer, spisesteder og grønne oaser. Beliggenheden sikrer høj synlighed og naturlig kundetrafik. Transportmulighederne er også i top med både metro og buslinjer næsten lige til døren. Kom og oplev, hvordan dette butikslokale kan danne ramme om dit næste eventyr. Her får du fleksible vilkår uden binding og med kort opsigelse. Lejemålets energimærke er angivet til: C
Flere detaljer
























