Unikt restaurations /sportsbar lokale i hjertet af Frederiksberg – Ingen binding
44.884 kr.
Beboelsesvogne fra Simple Homes
Udlejning til bl.a. privatgenhusning - høj service og hurtig levering
UDLEJNING AF BEBOELSESVOGNE
Vi udlejer vogne, lifte, Mobile badeværelser, Mandskabsvogne og Kontor-/spisevogne
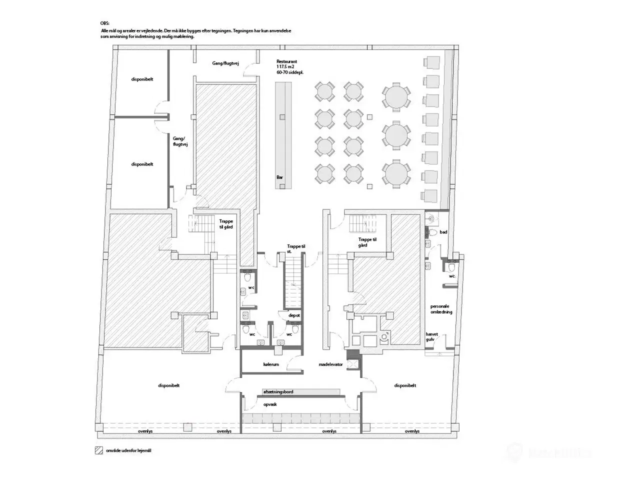
Drømmer du om at åbne din egen restaurant eller en hip sportsbar i hjertet af Frederiksberg.? På Falkoner Allé 12 A finder du perfekte rammer til din nye restaurant eller sportsbar. Nu har du chancen for at blive en del af det pulserende liv på den Falkoner allé – en af byens mest karakterfulde og velbesøgte gader. Her udbydes et helt unikt og nyrenoveret restaurantlejemål på i alt 458m² hvor du får muligheden for at sætte dit helt eget præg fra starten. Lejemålet istandsættes i tæt samarbejde med Udlejer. Lejer kan evt. få den helt særlige mulighed for at selv stå for istandsættelsen, selvfølgelig med økonomisk opbakning fra Udlejer. Som udgangspunkt afleveres Lejemålet som en indflytningsklar whitebox med færdige gulve, vægge, lydlofter, klargjorte VVS-installationer, toiletter og meget mere – alt i høj kvalitet og med øje for detaljen. Med i pakken følger: - Færdig rørføring og motor til udsugning. - Installeret fedtudskiller. -Toiletter. - Grundbelysning. - El-kapacitet til professionelt køkkenudstyr. - Personbelastning på ca. 180 gæster. - Herudover ca. 20 attraktive udendørspladser Lejer står selv for etablering af køkken og emhætte samt inventar -lamper mm.– resten er gjort klart til din vision. Dette er en sjælden mulighed for at starte noget nyt og unikt i et af Københavns mest levende kvarterer. Perfekt til dig, der ønsker at bringe din restaurationsidé til live i de helt rette rammer.Lejemålet består af en stueetage på 59 m² med køkken og en underetage på 399 m² med plads til mange gæster. Placeret på Falkoner Allé, en central og livlig del af Frederiksberg tæt på Gammel Kongevej. Her får du et godt kundeflow og nem adgang til grønne områder, caféer, shopping og kultur. Frederiksberg Have, Falkoner Salen og Frederiksberg Centeret ligger i nærheden, og offentlig transport gør det let for både kunder og medarbejdere at komme til og fra. Vi glæder os til at byde dig velkommen. Lejemålets energimærke er angivet til: C
Flere detaljer
































