Lokaler til leje på Flintholm Station
43.050 kr.
Beboelsesvogne fra Simple Homes
Udlejning til bl.a. privatgenhusning - høj service og hurtig levering
UDLEJNING AF BEBOELSESVOGNE
Vi udlejer vogne, lifte, Mobile badeværelser, Mandskabsvogne og Kontor-/spisevogne
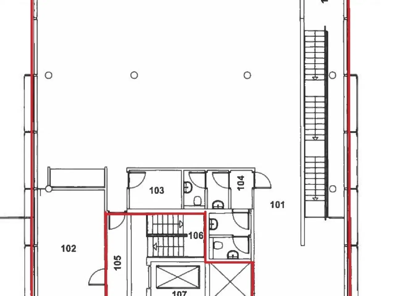
Lejemålet er beliggende i gadeplan og med direkte adgang fra Flintholm Station. Flintholm området er et attraktivt byområde, som går fra Finsensvej, Dirch Passers Plads via Flintholm Alle til stationen, med en mangfoldig blanding af erhvervsbyggeri, forskellige boligformer og special forretninger, som medfører, at området er i en rivende udvikling. Ydermere har stationen dagligt ca. 16.000 passagerer, og antallet er stadig stigende.Lejemålet har selvstændig hovedindgang fra gadeplan med udgang til Stig Lommers Plads. I samme niveau er der fælles vareindleveringsadgang med 7-eleven butikken. Selvstændig adgang til perron sker fra indvendig trappe i lejemålet.Lejemålet består af et stort rektangulært ”showroom” på 206,4 m² med tekøkkenfaciliteter, ydermere et selvstændig mødelokale på 26,6 m² og en mindre printerrum på 6,4 m². Der er selvstændig toiletkerne i lejemålet og brugsret/adgang til handicaptoilet i stueetagen.
Flere detaljer























