282 m² kliniklejemål i velbesøgt sundhedshus
25.850 kr.
Beboelsesvogne fra Simple Homes
Udlejning til bl.a. privatgenhusning - høj service og hurtig levering
UDLEJNING AF BEBOELSESVOGNE
Vi udlejer vogne, lifte, Mobile badeværelser, Mandskabsvogne og Kontor-/spisevogne
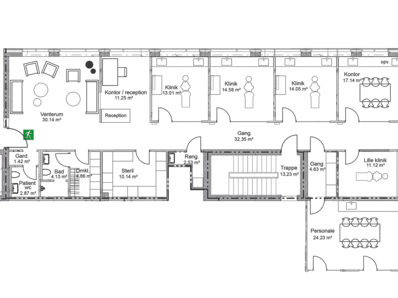
**Lejemålet** Det 282 m² store lejemål er beliggende på 3. sal med en dejlig udsigt og et fantastisk lysindfald. Lejemålet er i dag indrettet som tandlægeklinik. Alle patientrummene er afgrænset med glaspartier og lyse gulve, hvilket giver det lyse og sterile udtryk der lægges vægt på i et kliniklejemål. Ankomstområde, venteværelse og gangarealer er indrettet med flotte vinylgulve, lyse lofter og varme farver på væggene. Lejemålet er indrettet med god belysning samt ekstra køl i de fleste kliniklokaler. Der er mulighed for at indrette lejemålet anderledes og til andre formål, hvis en ny lejer ønsker dette. **Ejendommen** Som lejer i ejendommene får du adgang til fri afbenyttelse af et stort mødelokale med plads til 22 personer samt et stort konferencelokale der ligger i forlængelse af kantinen – begge med AV-udstyr. Ejendommene tilbyder også kantine med cateringfirma, der giver adgang til køb af tilberedt frokost hver dag, samt mulighed for bestilling af mødeforplejning til dine møder. Der er mulighed for leje af parkeringspladser både med og uden el-ladestander. **Parkering** Vi ved, at gode parkeringsmuligheder er altafgørende og derfor lægger vi også stor vægt på, at dette er tilgængeligt for vores lejere. I terræn er der mulighed for gæsteparkering, og i parkeringskælderen der er i 2 etager, er der parkering med nummerpladeregistrering. Her er der både mulighed for at parkere på almindelige pladser, men også mulighed for leje af p-pladser med el-ladestander til elbiler. **Beliggenhed** Ejendommen på Toldboden er beliggende centralt i Viborg, overfor Regionshospitalet og tæt på bus- og togstation, mens der kun er 500 meter til byens gågade.
Flere detaljer





















