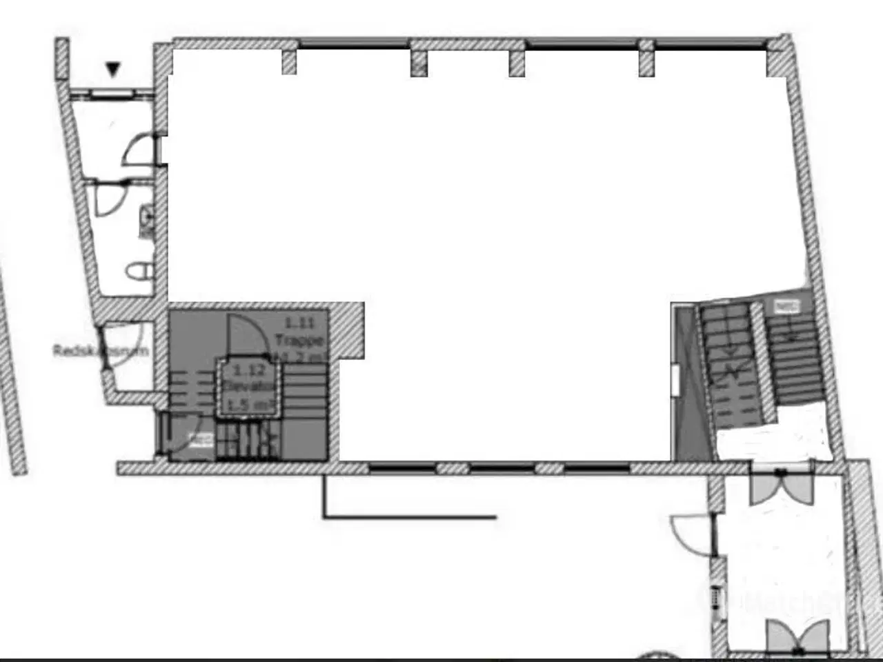
Butik. kontor. klinik - med bedste beliggenhed - i alt 193 kvm
31.183 kr.
Beboelsesvogne fra Simple Homes
Udlejning til bl.a. privatgenhusning - høj service og hurtig levering
UDLEJNING AF BEBOELSESVOGNE
Vi udlejer vogne, lifte, Mobile badeværelser, Mandskabsvogne og Kontor-/spisevogne
Beliggende med bedste beliggenhed i Viborg - lige op til indgangen til Sct. Mathias Centret. Stor disponering og stor vinduesfacade. Facade opdateres, således at der kommer butiksvinduer fra gulv til loft. Et lyst lokale med lysindfald fra begge sider. Evt. ændringer i lokalerne aftales nærmere, men lejemålet indeholder for nuværende et stort butikslokale og vindfang med kundetoilet i stueplan. I kælderen er der personaletoiletter og omklædning - her er der også mulighed for yderligere kvm i form af lager eller evt. personalerum / kantine. Lejemålet indeholder i alt 193 kvm - fordelt på 157 kvm i stueplan og 36 kvm i kælderen. Lokalet er ideelt til detailhandel, kontor eller showroom. Gode parkeringsforhold i umiddelbar nærhed. Kom og vær med!! Lejemålets energimærke er angivet til: B
Flere detaljer




















