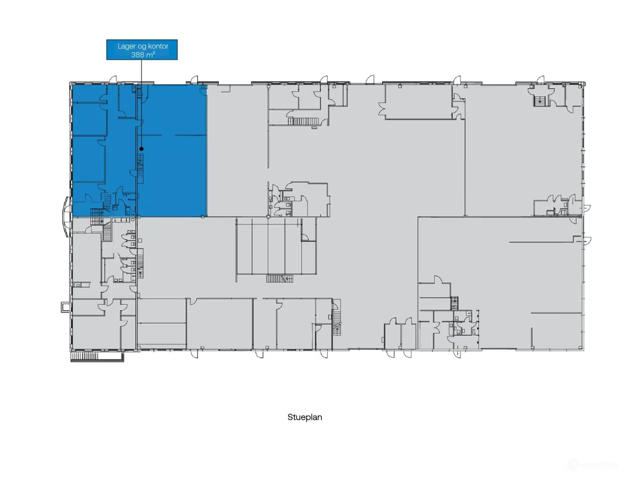
Fleksibelt lejemål på 388 m² – Lager og kontor i Brøndbys erhvervsområde
26.675 kr.
Beboelsesvogne fra Simple Homes
Udlejning til bl.a. privatgenhusning - høj service og hurtig levering
UDLEJNING AF BEBOELSESVOGNE
Vi udlejer vogne, lifte, Mobile badeværelser, Mandskabsvogne og Kontor-/spisevogne
På Kornmarksvej 26 i Ragnesminde udbydes nu et attraktivt og funktionelt lejemål på i alt **388 m²** , fordelt på **200 m² lager** og **188 m² kontor**. Lejemålet egner sig perfekt til virksomheder med behov for både kontorplads og lager- eller værkstedsfaciliteter. **Nøglefaciliteter:** - 200 m² lager med **automatisk portadgang** - 188 m² kontor med: - Lagerdelen har tidligere været anvendt som **bilværksted** **Beliggenhed og tilgængelighed:** - Beliggende i **Ragnesminde** – Brøndbys største erhvervsområde - Gode adgangsforhold til **motorvejsnettet** - **Bus 144** stopper lige foran ejendommen - Ca. 1 km til stoppesteder for **bus 22 og 143** - Kort afstand til både **byen og regional infrastruktur**
Flere detaljer
