Kontor. Pluklager. Showroom. Catering
40.950 kr.
Beboelsesvogne fra Simple Homes
Udlejning til bl.a. privatgenhusning - høj service og hurtig levering
UDLEJNING AF BEBOELSESVOGNE
Vi udlejer vogne, lifte, Mobile badeværelser, Mandskabsvogne og Kontor-/spisevogne
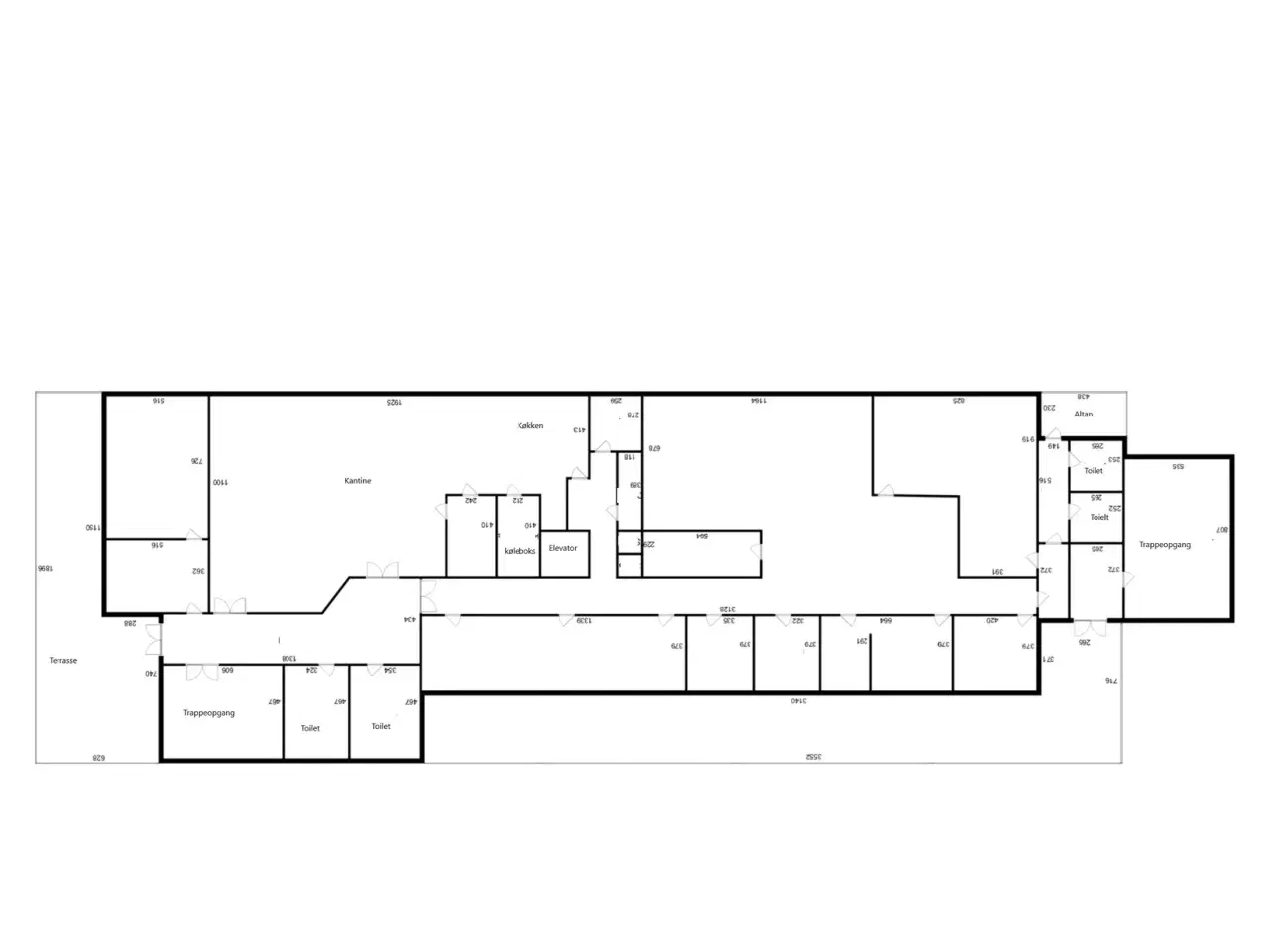
Kontorlejemål på i alt 1.679 m² i særdeles velbeliggende erhvervsejendom med gode tilkørsels- og parkeringsforhold. Arealet beliggende på 1. sal er på 819 m² og er pt. indrettet med flere kontorer/mødelokaler, depotrum, toiletter, garderobe og køkken. Desuden et stort ”pluklager” og elevator. Arealet på 2. sal er på 860 m² og er indrettet med storrumskontorer, mindre kontorer/mødelokaler, 4 toiletter med særskilte badefaciliteter samt et meget stort lokale med produktionskøkken og tilhørende kølerum, der gør det muligt, at benytte arealet til catering. Der er elevator i lejemålet. Lejemålet har ovenlysvinduer. Lejemålene vil blive klargjort til endelig istandsættelse, som aftales nærmere med udlejer. Der er udgang til to terrasser på anden sal, hvor der er en rigtig fin udsigt over området. Det er muligt at leje areal på op til 895 m² til lager eller mindre produktion i stueetagen Lejemålene er beliggende i Brøndbys let tilgængelige industriområde tæt på motorvejsnettet og Ringvej 03. Placeringen i Storkøbenhavn gør det hurtigt at komme til og fra ejendommen både fra København og resten af Sjælland. Området, der går under betegnelsen ”Ragnesminde” er reguleret af lokalplan 212. Området er udlagt til industri, værksted, handel- og transportvirksomheder og de til virksomhederne hørende lager- og kontorfunktioner. Udover kort afstand til motorvejsnettet er der også blot 150 meter til busstoppested for bus 144, der kommer mellem Ballerup og Vallensbæk stationer. Busser stopper også på Albertslund Station, som ligger blot 1,7 km fra ejendommen. Lejemålets energimærke er angivet til: B
Flere detaljer




























