Synlig og velbeliggende erhvervsejendom med stabile lejere i Vamdrup
Beboelsesvogne fra Simple Homes
Udlejning til bl.a. privatgenhusning - høj service og hurtig levering
UDLEJNING AF BEBOELSESVOGNE
Vi udlejer vogne, lifte, Mobile badeværelser, Mandskabsvogne og Kontor-/spisevogne
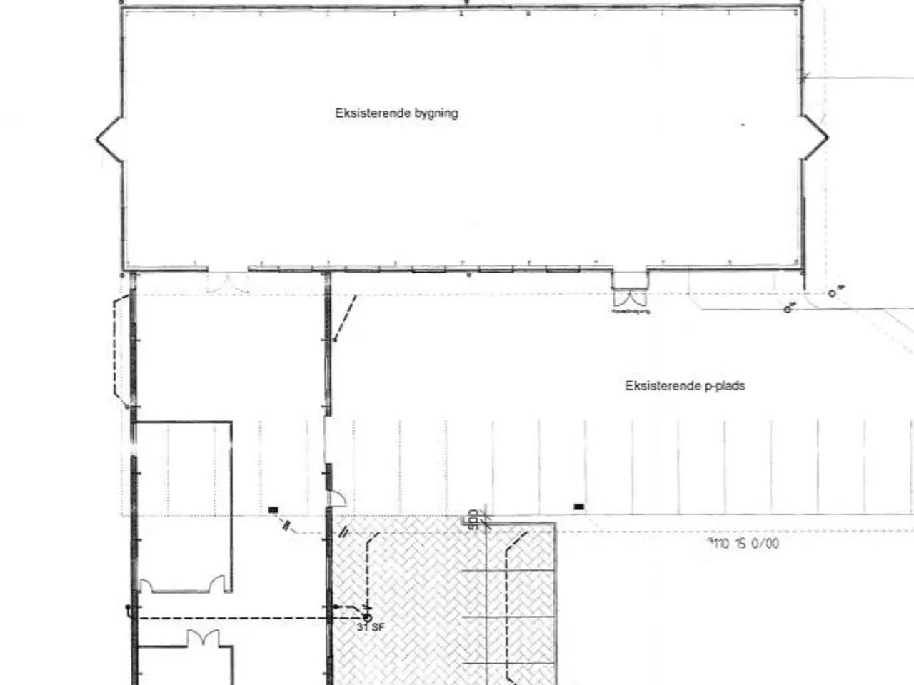
Ejendommen er centralt placeret i Trekantområdet, Kolding Kommune, Vamdrup. Placeringen giver gode forbindelser til både regionale og nationale transportkorridorer, hvilket gør området attraktivt for virksomheder med behov for effektiv logistik og god tilgængelighed for medarbejdere og kunder. Ejendommen er synligt placeret direkte ud til en af de større indfaldsveje til Vamdrup, hvilket giver en markant placering og gode muligheder for eksponering. Hovedvej 25 ligger få hundrede meter fra ejendommen og sikrer nem adgang til det overordnede vejnet. Motorvej E20 nås på få minutters kørsel via tilslutningen ved Lunderskov, mens motorvej E45 ligeledes nås hurtigt via tilkørslerne ved Kolding Syd og Vonsild. Offentlig transport med bus findes ca. 200 meter fra ejendommen. Ejendommen er opført som en funktionel erhvervsejendom med en kombination af lager-, produktions- og kontorfaciliteter. Det samlede erhvervsareal udgør ca. 805 m² på en grund på 4.505 m². Bygningen fremstår med en robust facade og saddeltag og er disponeret med gode udenomsarealer, der giver let adgang for varelevering samt parkering for ansatte og besøgende.
Se annoncen hos forhandlerenFlere detaljer

















