Velbeliggende industriejendom i Vejen sælges som investering
1 kr.
Beboelsesvogne fra Simple Homes
Udlejning til bl.a. privatgenhusning - høj service og hurtig levering
UDLEJNING AF BEBOELSESVOGNE
Vi udlejer vogne, lifte, Mobile badeværelser, Mandskabsvogne og Kontor-/spisevogne
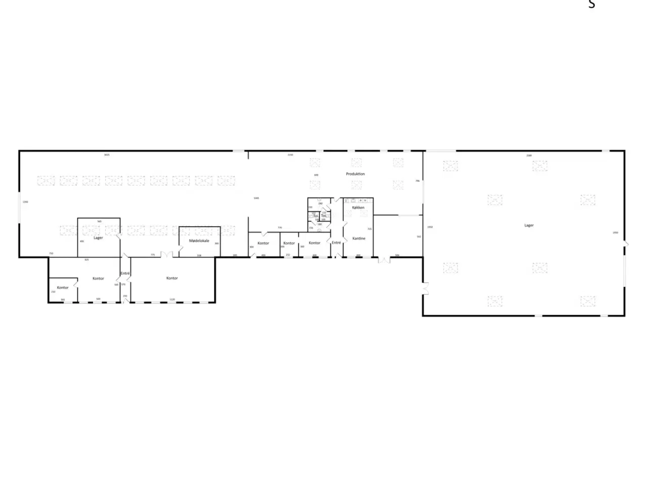
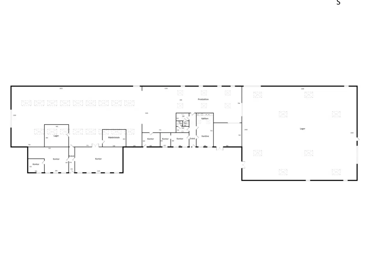
**Denne velproportioneret industriejendom er placeret tæt på E20 motorvejen mellem Esbjerg og Kolding (trekantområdet). Der er kort vej til både byen (Vejen) og motorvejen, der begge kan nås på under 5 min.** Ejendommen består af et kontorareal på 70 kvm, der giver god plads til at indrette jeres administration optimalt ift. netop jeres ønsker. Et produktions- og lagerareal på 1.316 kvm der tilbyder masser af plads til opbevaring, produktion og logistik. Ejendommen har indlagt 145 Amp. Den bagerste del af ejendommen har hidtil været anvendt til lager. Lageret har en loftshøjde på 9 m til kip og 6,5 m i side højde. Lageret har 2 port adgange, og der er monteret en traverskran med en kapacitet på 3.200 kg. Der er nyt monteret svejse-udsugningsanlæg. Ejendommens forreste del har en aflukket portåbning i endegavlen. Arealet frem til kontoret har en loftshøjde på 6 m til kip og 4,3 i side højde. Her er traverskran meden kapacitet på 2.000 kg. Midt i bygningen er mindre værkførerkontorer, køkken/kantine, pakkerum samt omklædning. Belægningen rundt om bygningen er kørefast asfalt. Der er optimale køkkenfaciliteter, flere parkeringspladser, toiletter, kabling til IT, mødefaciliteter, bad og omklædningsrum samt et par større porte. Tyverialarmen fra G4S kan evt. overtages sammen med ejendommen, hvilket giver ekstra sikkerhed. Derudover er der et Ruko-låsesystem i bygningen. Ejendommen er synlig og let tilgængelig, hvilket er ideelt for at tiltrække potentielle købere og kunder. Det er muligt at leje ejendommen, kontakt os for information om lejevilkår. Vi fremviser gerne ejendommen efter aftale. Kontakt os.
Se annoncen hos forhandlerenFlere detaljer























