Regulær bymidteejendom med mange anvendelsesmuligheder
1 kr.
Beboelsesvogne fra Simple Homes
Udlejning til bl.a. privatgenhusning - høj service og hurtig levering
UDLEJNING AF BEBOELSESVOGNE
Vi udlejer vogne, lifte, Mobile badeværelser, Mandskabsvogne og Kontor-/spisevogne
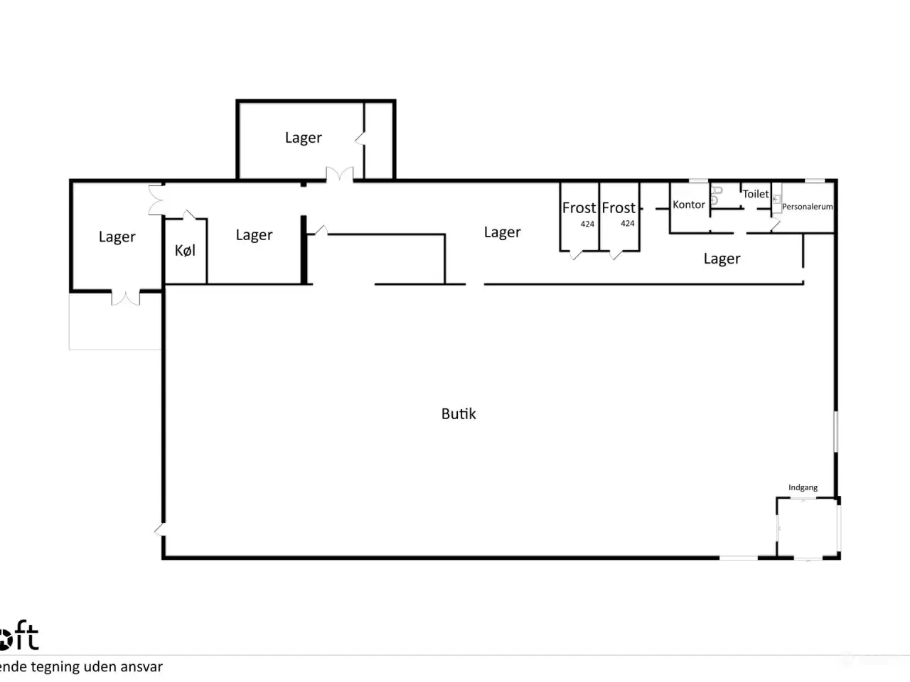
**Ejendommen er på 1.047 m² og ligger midt i Vejen by, få minutters gang fra gågaden i Nørregade og ca. 500 meter fra stationen. Lige ved bygningen findes et stort offentligt parkeringsareal. Så både kunder og medarbejdere når frem uden besvær, hvad enten det er med tog, bus eller bil. Bygningen er opført i 2001 og udvidet i 2009.** Ejendommen fremstår som en fritliggende butiks- og serviceejendom i rødt murværk med tegltag og markant glasindgang, der giver god synlighed mod Rosengade og p-plads. Ejendommen er energimærket A. Indenfor er hovedrummet næsten søjlefrit og nemt at disponere. Loftet er lyst med lineære belysningsarmaturer, og gulvene er slidstærke. Bagområderne rummer lagerfaciliteter, frostrum, kølerum, kontor, personalerum og toiletter. Planløsningen giver mulighed for at adskille kundevendte arealer fra bagområder uden større indgreb. Lokalplanen udlægger området til centerformål, herunder butikker, liberale erhverv samt offentlige formål. Ejendommen giver mulighed for konvertering til flere typer brug, den er særligt velegnet til: Et sundhedshus eller klinikfællesskab kan udnytte det store, åbne areal til trænings- og genoptræningsmiljø, mens de bagvedliggende rum egner sig til behandlingsrum, kontor og pauserum. Et motions- og genoptræningscenter kan arbejde i stueplan med direkte adgang fra gaden, og de eksisterende køl/frost-rum kan konverteres til depot eller tekniske rum. Uddannelse og kursusvirksomhed kan anvende salens volumen til teori og praksis og supplere med backoffice i sidearealerne. Dyrlæge eller dyrehospital kan kombinere ventezone i fronten med klinikrum bagerst. Showroom, nonfood-butik, genbrugs- eller klik-og-hent-koncepter får både eksponering og nærparkering, som er efterspurgt i Vejen. Der er gode parkeringsmuligheder lige ved indgangen, hvilket er en fordel i den daglige drift. Adgangen for leverancer sker via varegården bag butikken, hvilket gør modtagelse og intern håndtering enkel. Eventuelle behov for port- eller rampefaciliteter kan indarbejdes i en ombygningsløsning, da bagarealerne ligger samlet. KLH Erhverv fremviser gerne ejendommen efter aftale. Kontakt os på Tlf. 70 25 09 25 Lejemålets energimærke er angivet til: A2010
Se annoncen hos forhandlerenFlere detaljer


















