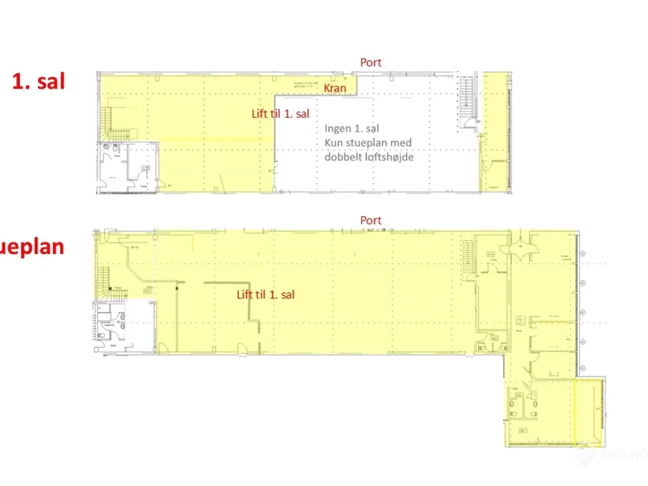
AUTOVÆRGSTED eller Lager med store Port Centralt beliggende ved 2 motorvejstilkørsler.
58.283 kr.
Beboelsesvogne fra Simple Homes
Udlejning til bl.a. privatgenhusning - høj service og hurtig levering
UDLEJNING AF BEBOELSESVOGNE
Vi udlejer vogne, lifte, Mobile badeværelser, Mandskabsvogne og Kontor-/spisevogne
AUTOVÆRGSTED eller Lager med store Port Centralt beliggende ved 2 motorvejstilkørsler. Velegnet til Autoværksted, værksted, eller Lager Højloftet hal med port Kran som dækker hele hallens længde Mekaniker bad-, toilet og omklædning Kantine med køkken 2 stk. kontorer Kundemodtagelse med venteværelse og toiletter Mulighed for auto-opladning Stort udeareal til præsentation af biler I samme bygning er følgende også til leje: - 680 kvm showroom / forretning på 1. sal - 157 kvm underetage - Plads til 3 stk. 40 fods containere /containerpladser. Vi fremviser med kortvarsel. .
Flere detaljer
Om boligen
- Produkttype
- Erhvervslokaler

























































