1501-24: Roholmsvej 14C, st., 2620 Albertslund – 1248 m2
83.200 kr.
Beboelsesvogne fra Simple Homes
Udlejning til bl.a. privatgenhusning - høj service og hurtig levering
UDLEJNING AF BEBOELSESVOGNE
Vi udlejer vogne, lifte, Mobile badeværelser, Mandskabsvogne og Kontor-/spisevogne
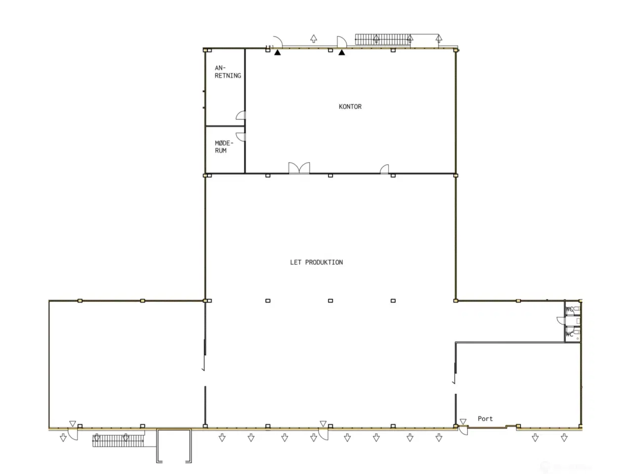
# **Funktionelt lager/produktion med port og kontor!** Lejemålet på Roholmsvej vil efter renovering være klar til indbyde til brug som lager eller lettere produktion samt kontor. Her får man 1.248 m² med en fleksibel indretning, der kombinerer store regulære lager/showroom/produktionsområder med et separat kontor og toilet- samt spisefaciliteter. Lejemålet vil blive nyistandsat med blandt andet nye epoxybelagte gulve, nymalet, køkken, badefaciliteter, toiletter og omklædningsmuligheder. Kontoret fremstår lyst og funktionelt, og der er rigelig parkeringsplads på ejendommen – herunder opladning til elbiler. Billederne er inspirationsbilleder af tilsvarende lejemål som kan forventes efter ombygningen. Lejemålet har mulighed for udlejes som 2.457 m2, da tilstødende lejemål ligeså er under renovering og udlejning. Med en praktisk beliggenhed i Albertslund, gode tilkørselsforhold og en indretning, der gør det let at kombinere lager og kontor, er dette lejemål ideelt for virksomheder med behov for både funktionalitet og sikkerhed.
Flere detaljer



















