Lager på Quintus Bastion
63.450 kr.
Beboelsesvogne fra Simple Homes
Udlejning til bl.a. privatgenhusning - høj service og hurtig levering
UDLEJNING AF BEBOELSESVOGNE
Vi udlejer vogne, lifte, Mobile badeværelser, Mandskabsvogne og Kontor-/spisevogne
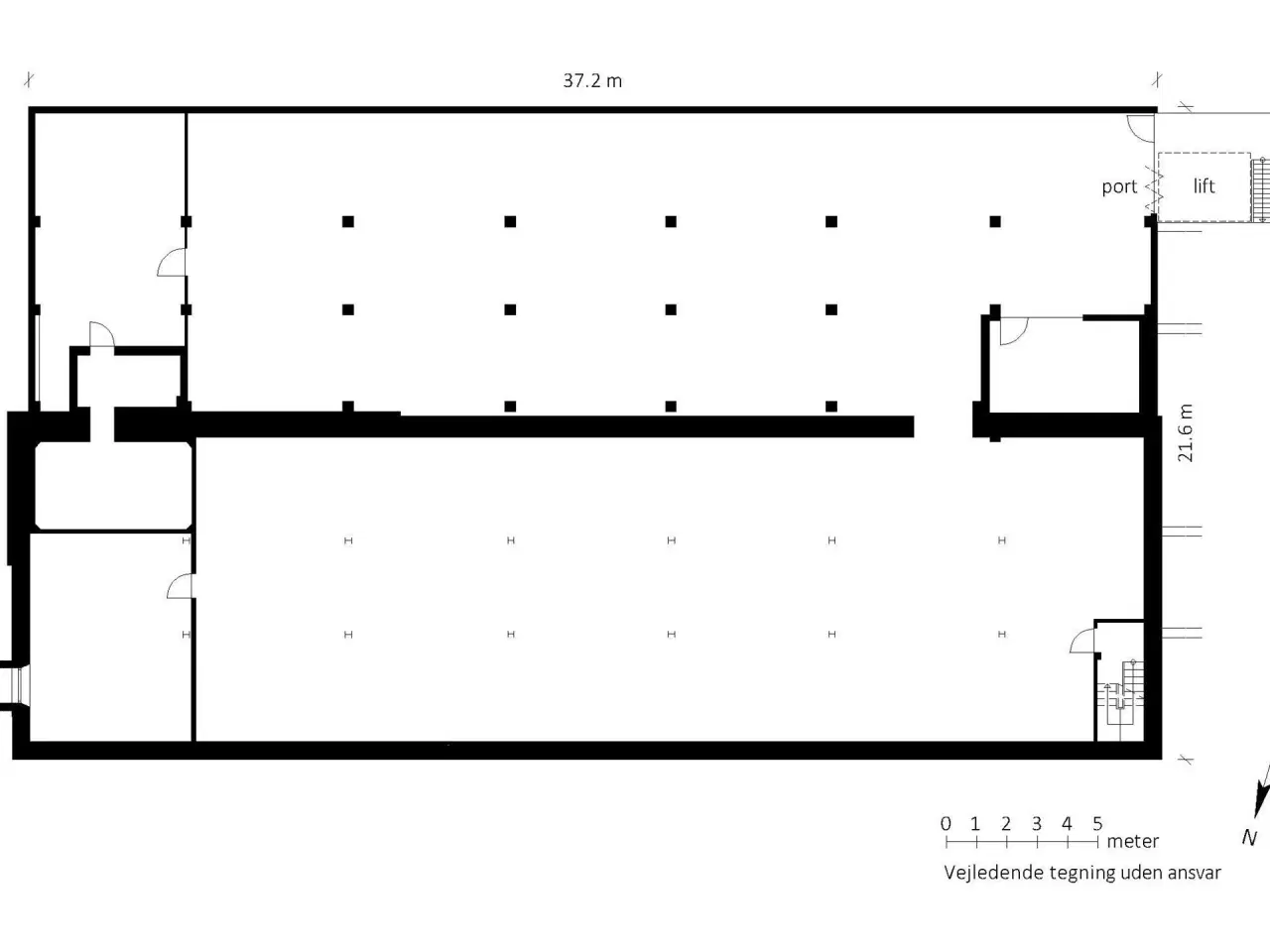
Under Vandkunsten Arkitekter på Quintus Bastion har du nu mulighed for at leje et stort lager. Der er let adgang til lageret med bil/vogn og det entreres enten fra trappe eller mekanisk lift fra terræn til kælderetagen. **Området** Quintus Bastion er en del af Københavns befæstning og daterer sig tilbage til 1600-tallet. Sammen med Nyholm er Quintus Bastion den nordligste del af Holmens fæstningsværker. Omkranset af vand og husbåde byder Quintus Bastion på hyggelig maritim Holmen stemning i en klasse helt for sig. Quintus Bastion er fredet og omfattet af museumsloven, hvilket betyder, at det kun er eksisterende bygninger, der kan benyttes til erhverv og bolig. Mod syd for Bastionen findes det fredede voldområde, der ligeledes er bevaringsværdig, mod Nord ligger Refshaleøen. Quintus Bastion tilgås med bil via Christianshavn eller Kløvermarken. Christianshavn og Holmen er solidt forbundet via cykel-/gangbroer, således Kongens Nytorv kan nås på blot 10 minutter på cykel. Desuden har Københavns Kommune besluttet at tilføje en ny cykel-/gangbro mellem Refshaleøen og Toldboden, dette projekteres i denne tid. I gå- og cykelafstand findes endvidere både Christianshavns Metro station, havnebussen og busforbindelse 2A. **Lejemålet** Kælderetagen af Forsvarets tidligere ejendom er indrettet til kælder. Mekanisk lift direkte til indgangsporten gør lageret yderst anvendeligt. Parkering kan tillejes i lejemålets nærhed. Lageret har beton vægge, lofter, gulv, er indrettet med belysning, radiatorer og aflåselige zoner og rum. Der er ståhøjde i lejemålet, dog med nogle få lavere buer i konstruktionen.
Flere detaljer



















