Byens Bedste Baghus med rigtig kongelig nabo
27.750 kr.
Beboelsesvogne fra Simple Homes
Udlejning til bl.a. privatgenhusning - høj service og hurtig levering
UDLEJNING AF BEBOELSESVOGNE
Vi udlejer vogne, lifte, Mobile badeværelser, Mandskabsvogne og Kontor-/spisevogne
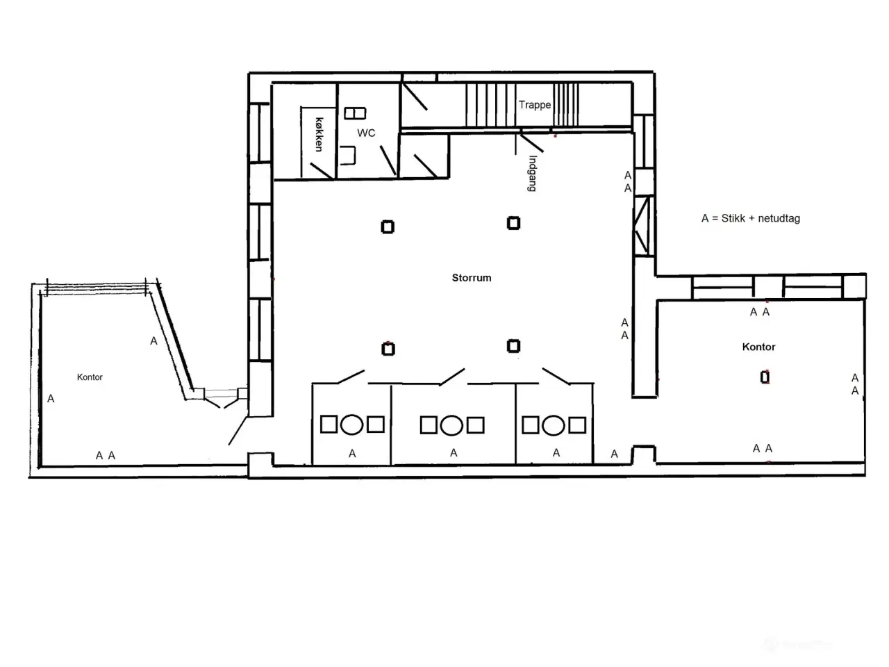
**Unikt stille kontorlejemål med atmosfære og suveræn beliggenhed - nabo til Amalienborg og overfor Amaliehaven og Operahuset.** Lejemålet ligger i en smuk, historisk ejendom, der tidligere husede Toldbod Dampmølle. Ejendommen er i dag gennemrenoveret og moderniseret med stor respekt for dens oprindelige arkitektur. Den står smukt med synlige, gamle bjælker og med alle moderne faciliteter. Ejendommen har fibernet fra TDC og Global Connect. **Beliggenhed:** 500 m. fra Marmorkirkens Metro. 300 m til Kvæsthusmolens parkeringshus med 500 pladser. **Indretning:** Lejemålet som ligger i baghuset er indrettet med 1 storrumskontor / samt 2 kontorer og 3 små mødelokaler/telefonrum, køkken og toilet. (se tegning) 5-20 arbejdspladser. **Ekstra faciliteter:** · Mulighed af at leje P-plads i gården. · Ejendommen er forsynet med solcellestrøm fra eget solcelleanlæg som dækker ca. 50% af ejendommens strømforbrug Lejemålets energimærke er angivet til: C
Se annoncen hos forhandlerenFlere detaljer
























