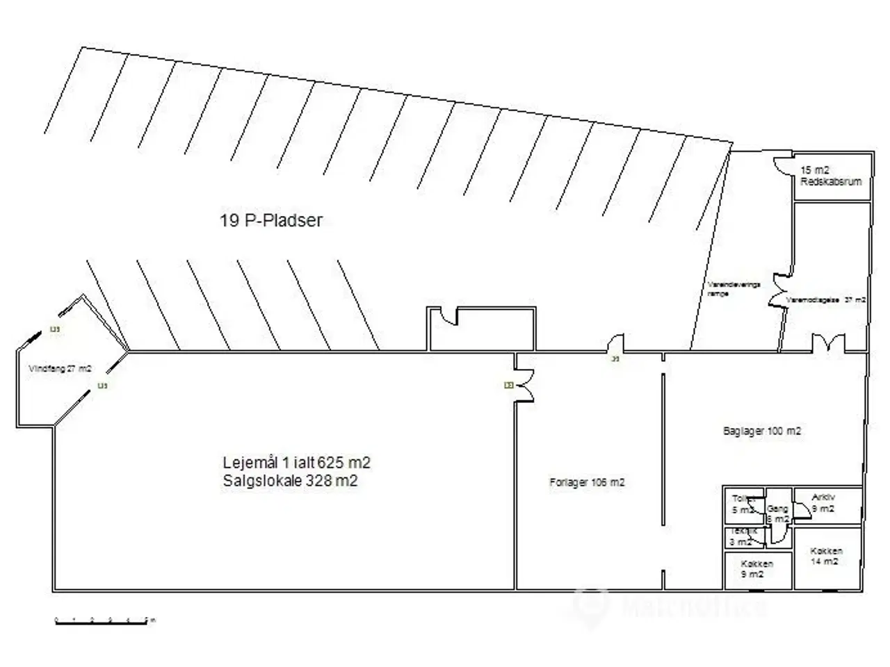
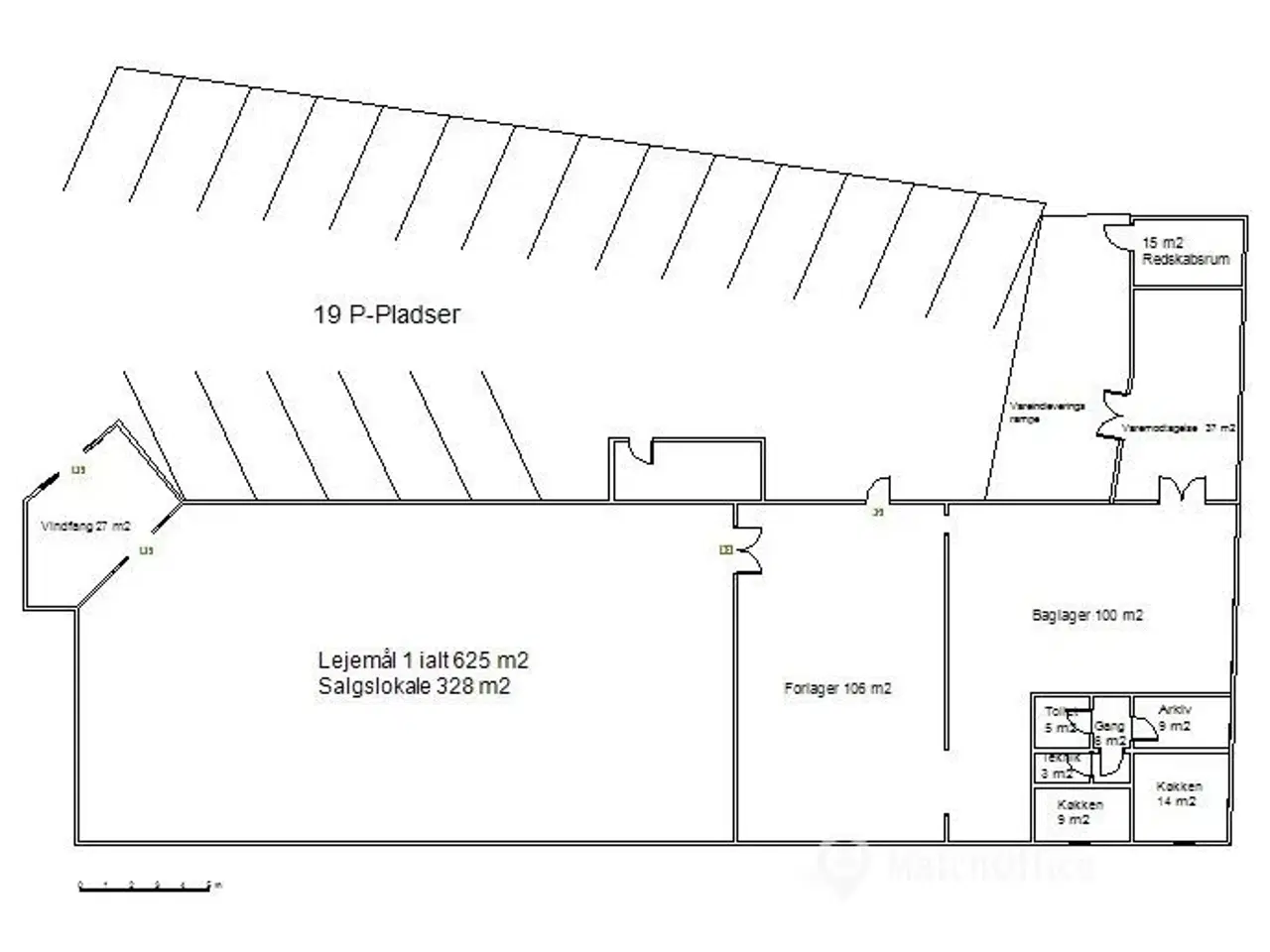
Centralt placeret detailhandelslejemål i Thisted
41.406 kr.
Beboelsesvogne fra Simple Homes
Udlejning til bl.a. privatgenhusning - høj service og hurtig levering
UDLEJNING AF BEBOELSESVOGNE
Vi udlejer vogne, lifte, Mobile badeværelser, Mandskabsvogne og Kontor-/spisevogne
Velkommen til et attraktivt lejemål beliggende i hjertet af Thisted, på den velkendte adresse Asylgade 1a. Der tidligere har huset en Netto og Kop og Kande. Lejemålet tilbyder en ideel beliggenhed for alle typer af detailhandel, med god synlighed og adgang til både lokale kunder og forbipasserende. Med sin centrale placering i byens handelsområde, er lejemålet perfekt til butikker, caféer, restauranter eller andre detailforretninger, der ønsker at drage fordel af Thisteds livlige bymiljø. Lokalet er rummeligt og fleksibelt, hvilket giver god mulighed for tilpasning efter den enkelte lejerens behov. Uanset om du er en etableret forretning eller en ny aktør på markedet, giver dette lejemål dig den perfekte platform for succes i et af Thisteds mest eftertragtede områder
Se annoncen hos forhandlerenFlere detaljer
















