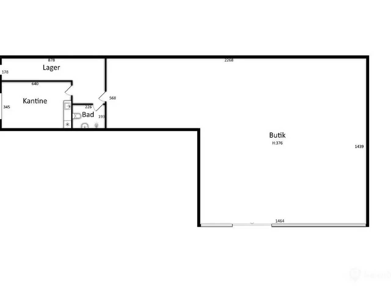
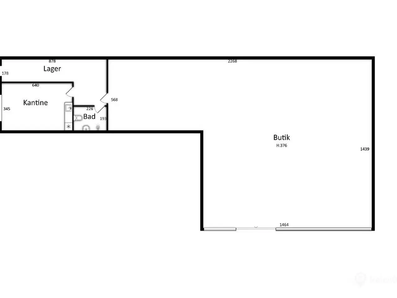
Special- / udvalgsbutik i Farsø Butikscenter - i alt 365 kvm
14.997 kr.
Beboelsesvogne fra Simple Homes
Udlejning til bl.a. privatgenhusning - høj service og hurtig levering
UDLEJNING AF BEBOELSESVOGNE
Vi udlejer vogne, lifte, Mobile badeværelser, Mandskabsvogne og Kontor-/spisevogne
Stort, regulært butikslejemål på brutto 365 kvm, beliggende i Farsø Rådhuscenter, lige inden for døren fra P-pladsen og med REMA 1000 som nabo og SuperBrugsen som genbo. Butikken har 14 meter glasfacade mod centergangen - som er 8 meter bred og med mulighed for "gadevarer". Butikslokalet er stort, åbent og meget regulært plus en vinkel/bagbutik og kontor/kantine og WC. Denne del af centret er bygget i 2014 og lejemålet overtages nymalet og indflytningsklart. I det anførte bruttoareal indgår andel af gangareal på 57 kvm. Farsø Rådhuscenter, der er Vesthimmerlands største center, er et veletableret og veldrevet shoppingcenter. Farsø Rådhuscenter ligger centralt placeret i Farsø´s bymidte og er omgivet af over 300 gratis parkeringspladser.
Se annoncen hos forhandlerenFlere detaljer




















