Produktion/lager - tidligere været anvendt til produktion af fødevarer
63.296 kr.
Beboelsesvogne fra Simple Homes
Udlejning til bl.a. privatgenhusning - høj service og hurtig levering
UDLEJNING AF BEBOELSESVOGNE
Vi udlejer vogne, lifte, Mobile badeværelser, Mandskabsvogne og Kontor-/spisevogne
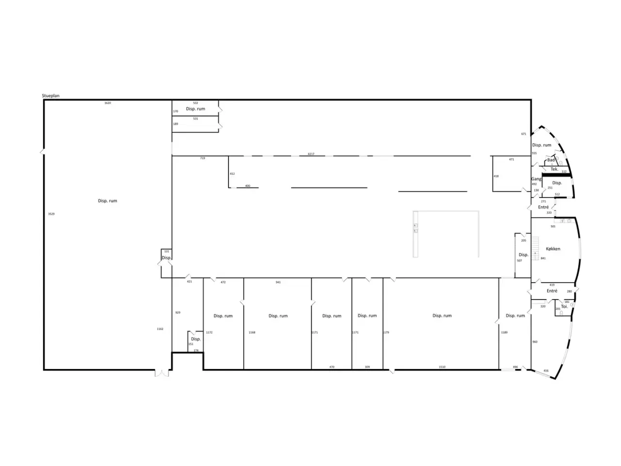
Lejemålet har en meget synlig beliggenhed og eksponering fra Vestmotorvejen ved afkørsel 39 med 40.000 bilister kørende forbi på daglig basis. Ejendommen er opført i 2002 og fremstår præsentabel og i god, vedligeholdt stand. Lejemålet har senest været benyttet til fødevarevirksomhed, hvor der har været produceret måltidskasser og catering. Lejemålet er derfor indrettet med produktionskøkken, store køle- og frostrum, pakke- og lagerlokaler, personalerum og hvad dertil hører samt administrationslokaler m.m. De 202 m² er et overdækket areal. Generelt har ejendommen en rigtig god intern logistik. Lejemålet kan også anvendes til mange andre formål indenfor lager og produktion. Med beliggenhed lige ud til Vestmotorvejen fås ikke bedre beliggenhed for virksomheder, der har behov for effektiv distribuering. Energimærke er under udarbejdelse. Den oplyste leje stiger efter 3 år til normalleje kr. 475,- pr. m². ”Slipset” Trafik- og Transportcenter Lokalplan nr. 197A er gældende for området. Beliggenhed Slagelse er en by, som har en stor erhvervsmæssig tilstedeværelse med en strategisk placering tæt på motorvejsforbindelse til hele Danmark, hvilket giver optimale transportmuligheder. Slagelse er kendt for sin tilgang til bæredygtighed og innovation med et fokus på grøn omstilling der også afspejles i kommunens udviklingsplaner. Byen har en række mindre og mellemstore virksomheder inden for blandt andet produktion af maskiner, fødevarer og byggematerrialer samt tekstil. Virksomhederne i Slagelse har en god adgang til kvalificeret arbejdskraft, da byen har rigtig gode udannelsesinstitutioner. Slagelse har desuden et aktivt erhvervsliv med flere erhvervsnetværk og handelsforeninger, der styrker vidensdeling og samarbejde. Alt i alt er Slagelse en dynamisk by med et bredt erhvervsliv der har let adgang til byen med Slagelse Station og Vestmotorvejen E20.
Flere detaljer





























