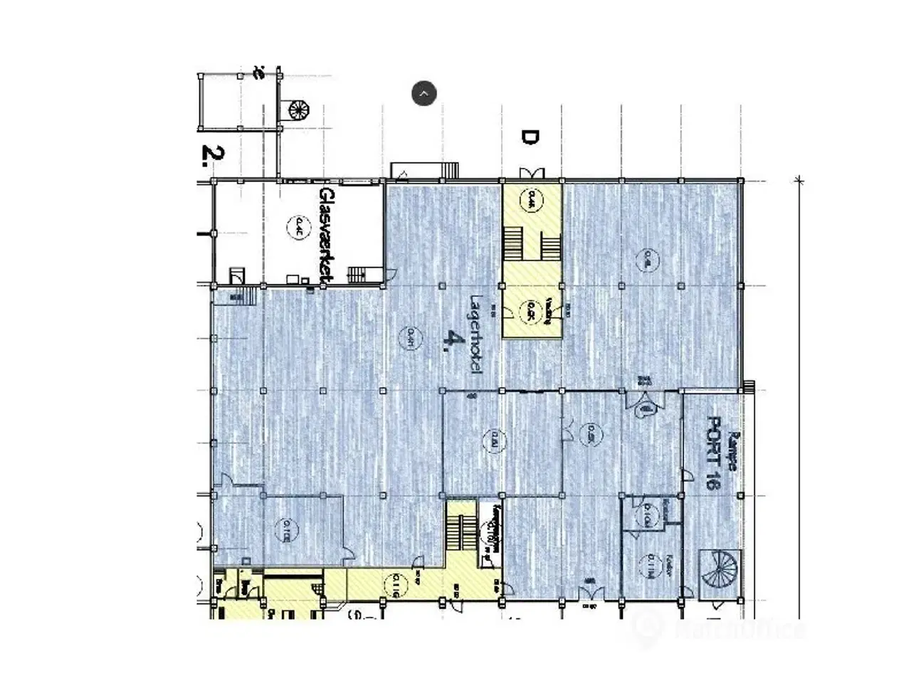
1026 m2 velindrettede lokaler til lager/lettere produktion og kontor.
27.788 kr.
Beboelsesvogne fra Simple Homes
Udlejning til bl.a. privatgenhusning - høj service og hurtig levering
UDLEJNING AF BEBOELSESVOGNE
Vi udlejer vogne, lifte, Mobile badeværelser, Mandskabsvogne og Kontor-/spisevogne
Ledigt pr. 1. juni 2025. Lejemålet består af et regulært, isoleret og opvarmet lager/produktionslokale med en god loftshøjde. Arealerne fremstår velindrettede og adgang sker via port fra udvendig betonrampe samt med indgang fra glasparti ved ejendommens parkeringsplads. Lejemålet rummer flere gode muligheder, og kan tilpasses så det udgør rent lager, let produktion, showroom og med et par kontorpladser – afhængig af hvad kommende lejer ønsker. Lejemålet vil derudover overtages som det er, hverken istandsat eller nymalet, men pænt og ordentligt. Hvis andet ønskes, kan dette tilgodeses i lejeaftalen. Endvidere forefindes pæne kontorfaciliteter med udsigt til vandet samt mulighed for at bruge stort fælles mødelokale på 1. sal. Lejemålet har antistatisk linoleumsgulv, CEE stik monteret dels i loftsskinne samt som vægudtag og udsugningsanlæg installeret i en del af lejemålet. Rør til trykluft forefindes ligeledes. Eksisterende opdeling af lageret kan ændres. ABA- anlæg (Automatisk Brand Alarmering) forefindes. Adgang til ejendommen sker via automatiseret port og via det indhegnede havneareal. Der må lastes via havnen, men ikke parkeres. Der findes gode gratis parkeringsforhold ved lejemålet, til brug for ejendommens lejere og gæster. Der er ligeledes offentlig tilgængelige el ladestander på parkeringspladsen, med mulighed for firmaaftale. Lejemålet ligger placeret tæt på handlemuligheder samt offentlig transport. Lejemålet er sikret med ca. 125 Amp og der er mulighed for fibernet.
Flere detaljer




















