Overtag lejemålet som det fremstår til en skarp pris
26.921 kr.
Beboelsesvogne fra Simple Homes
Udlejning til bl.a. privatgenhusning - høj service og hurtig levering
UDLEJNING AF BEBOELSESVOGNE
Vi udlejer vogne, lifte, Mobile badeværelser, Mandskabsvogne og Kontor-/spisevogne
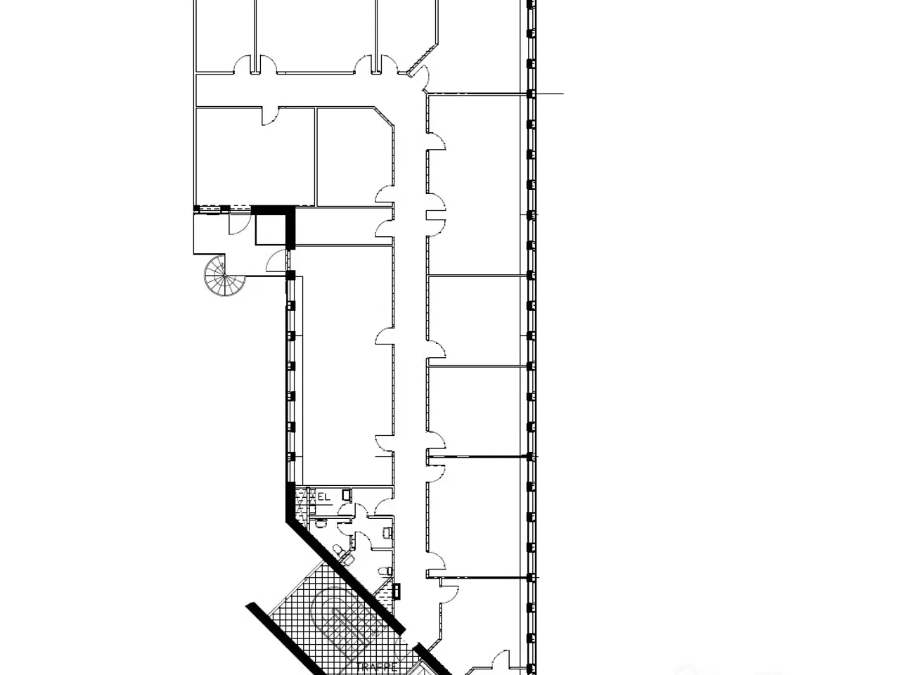
Lav leje og hurtig overtagelse. Præsentabel kontorejendom med fælles hyggelig gårdhave. **Området** Lejemålet er en del af Hillerøds eftertragtede erhvervskvarter, ca. 2 km. fra Hillerødsmotorvejen afkørsel 16 – Hillerød S, yderligere er der ca. 5 min. til centrum af Hillerød og ca. 2 km. til Hillerød St. Fra Københavns centrum er der ca. 38 km til adressen i Hillerød. **Ejendommen** Roskildevej 10-12 blev bygget i år 1994, og udgør i alt 8.105 m². Ejendommen, Trollesminde kontorpark, består af 2 ens bygninger i 2 etager, opført med 4 længer omkring en atriumgård. Særdeles præsentabel ejendom opført i sandfarvede, strøgne sten med flotte adgangsforhold i glas. **Lejemålet** Lejemålet er beliggende i opgang 10A på 1. sal til højre, som både kan tilgås med elevator og trappe, og med August Jørgensen Advokater boende på 1. sal til venstre. Lejemålet består af en lang fordelingsgang med en række aflukkede kontorer/mødelokaler i forskellige størrelser på højre hånd, med kig ud over matriklens parkeringsplads og grønne arealer, og på venstre hånd 4 toiletter, bad og eget køkken med stor frokoststue. Lejemålet er også at finde på nettet med en totalistandsættelse, men denne annonce lægger op til at lejemålet overtages som beset - både til en lavere leje og uden binding. **Parkerings- og trafikforhold** Til ejendommen er ca. 200 gratis parkeringspladser til brug for ejendommens lejere og gæster, samt mulighed for opladning af elbil. Bus 305 fra Trollesminde Allé (Peder Oxes Allé) ca. 500 meter fra ejendommen, som på 6 minutter kører til Hillerød St. Dertil går også 91N og 65E 500 meter fra ejendommen. **Størrelse** Lejemålet udgør 497 m². **Leje** Den månedlig leje udgør kr. 26.920,83, svarende til en m² pris på kr. 650,00, med tillæg af aconto drifts- og varmeudgifter. **Regulering af leje** Basislejen reguleres årligt, pr. 1. januar, med udviklingen i nettoprisindekset, dog minimum 2%, første gang pr. 1. januar 2027. **Depositum** Der beregnes et depositum svarende til 6 måneder, af den til enhver tid værende basisleje. **El** Der er separat elmåler til lejemålet. **Varme** Der udarbejdes årligt (kalenderåret) et varmeregnskab, som fordeler varmeudgifterne på alle lejemål. Lejer opkræves aconto varmebidrag svarende til kr. 72,59 pr. m², svarende til kr. 3.006,44 pr. måned. **Driftsudgifter** Lejer betaler en forholdsmæssig andel af ejendommens driftsudgifter, ejendomsskatter og –afgifter, forsikring, vandforbrug, renovation, fælles el-forbrug, ejendomsservice/vicevært, snerydning, renholdelse og vedligeholdelse af udvendige arealer, herunder service og vedligeholdelse af installationer, samt udarbejdelse af regnskaber for drifts- og fællesudgifter og administration m.m. Lejer opkræves aconto driftsbidrag svarende til kr. 187,60 pr. m², svarende til kr. 7.769,77 pr. måned. **Moms** Alle ydelser tillægges den til enhver tid gældende moms. **Vedligeholdelse** Indvendig vedligeholdelse af det lejede påhviler lejeren. Udvendig vedligeholdelse påhviler udlejeren. **Uopsigelighed** 5 års uopsigelighed, hvorefter lejemålet kan opsiges med 6 måneders varsel. **Indflytning** Efter aftale. Lejemålets energimærke er angivet til: C
Se annoncen hos forhandlerenFlere detaljer





















