Hillerød – centralt placeret kontorlejemål
16.950 kr.
Beboelsesvogne fra Simple Homes
Udlejning til bl.a. privatgenhusning - høj service og hurtig levering
UDLEJNING AF BEBOELSESVOGNE
Vi udlejer vogne, lifte, Mobile badeværelser, Mandskabsvogne og Kontor-/spisevogne
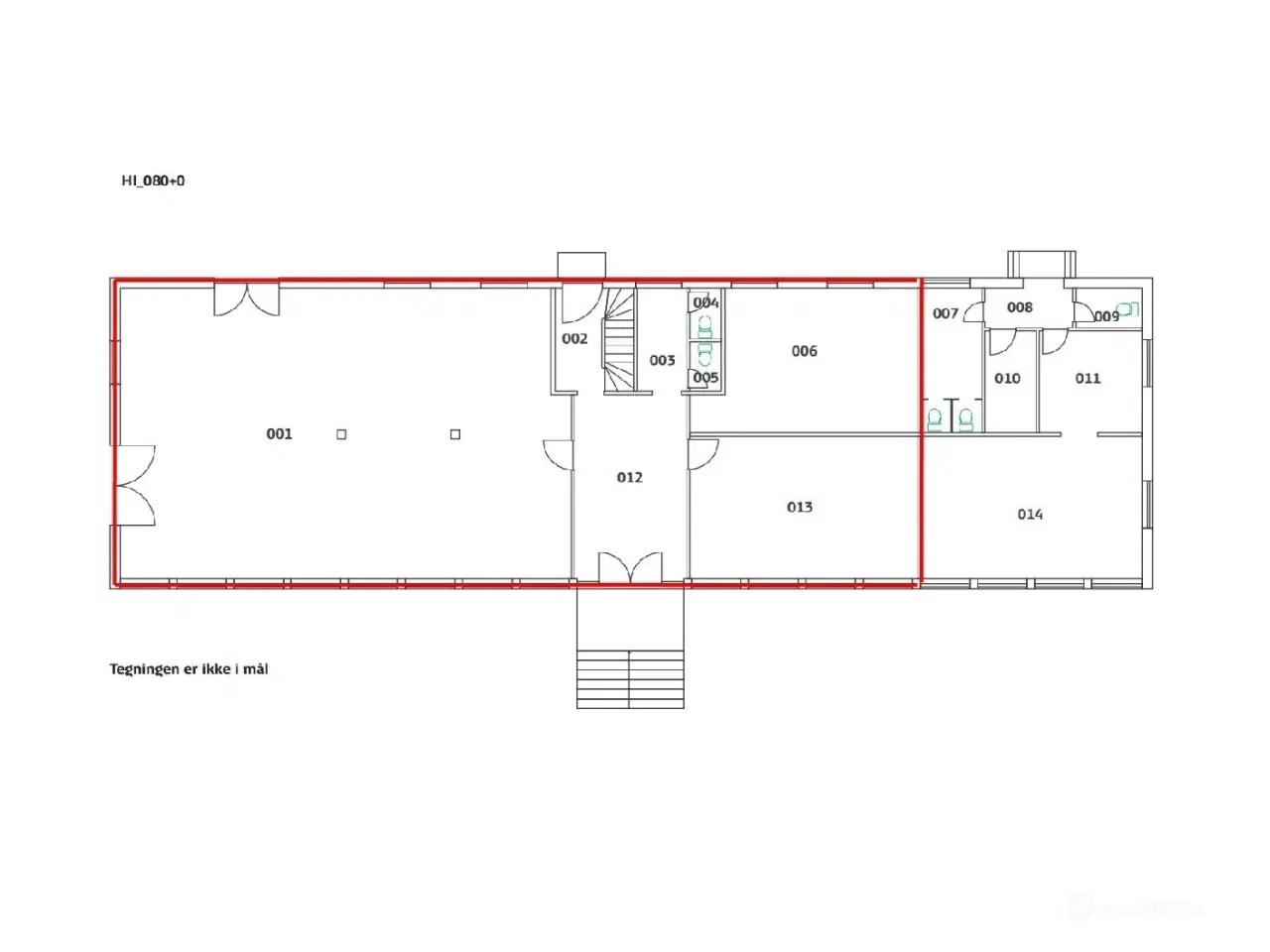
**Kontor - midt i Hillerød - nabo til stationen, lokalbanen og busforbindelser** Søger du og din virksomhed et attraktivt og centralt placeret kontorlejemål, så har du chancen nu. Om lejemålet: (Revideret plantegning under udarbejdelse). Lejemålet er generelt meget lyst med store vinduespartier. - Flot og synligt indgangsparti med god mulighed for branding af virksomhedsnavn. - I alt 6 rum / kontorer. - Ét stort og tre mindre (opdelt vha. skillevægge) i nuværende lok. 001. - To store kontorlokaler (se plantegning, lok. 006 og 013) - Personalekøkken (se billeder - ikke vist på plantegning) - 3 toiletter Der er derudover mulighed for at tilleje rum i kælder til depot. Der er mulighed for 4 p-pladser (skal godkendes af kommunen). Lejen er inkl. driftsomkostninger. Forbrug er anslået (a/c).
Se annoncen hos forhandlerenFlere detaljer
























Ny