Forretningsejendom - centralt i Nykøbing M
Beboelsesvogne fra Simple Homes
Udlejning til bl.a. privatgenhusning - høj service og hurtig levering
UDLEJNING AF BEBOELSESVOGNE
Vi udlejer vogne, lifte, Mobile badeværelser, Mandskabsvogne og Kontor-/spisevogne
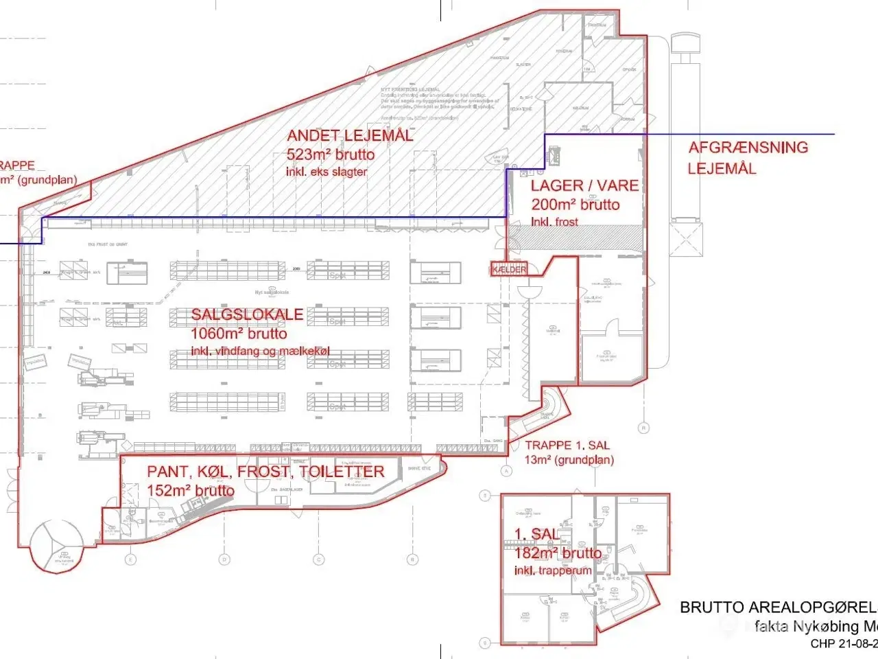
Ejendommen har tidligere været benyttet til dagligvarebutik, men vil være velegnet til en lang række former for butik, restauration, forlystelse, fitness m.m. Ejendommen indeholder i stueplan: indgangsparti med adgang til stort forretningslokale på 1.583 kvm med god loftshøjde, fra forretningslokalet er der adgang til lagerlokale på ca. 200 kvm samt disponibelt rum på ca. 152 kvm. Der er trappe til 1. sal, som indeholder personalefaciliteter, kontor- og mødelokaler på i alt ca.182 kvm. 1. sal i forbygningen er ubenyttet og har tidligere været benyttet til beboelse og senest til personalefaciliteter for den tidligere dagligvareforretning. 1. og 2. sal i forbygningen vil være oplagte til omdannelse til beboelse. 2. sal er forberedt til beboelse. Hver etage er på ca. 215 kvm. Til ejendommen hører p-hus på i alt 1.560 kvm - eventuelt fremtidigt anvendelse til bolig. Lejemålets energimærke er angivet til: C
Flere detaljer
Om boligen
- Produkttype
- Erhvervslokaler





























