Nyopførte og moderne lokaler beliggende i Karlslunde
708.147 kr.
Beboelsesvogne fra Simple Homes
Udlejning til bl.a. privatgenhusning - høj service og hurtig levering
UDLEJNING AF BEBOELSESVOGNE
Vi udlejer vogne, lifte, Mobile badeværelser, Mandskabsvogne og Kontor-/spisevogne
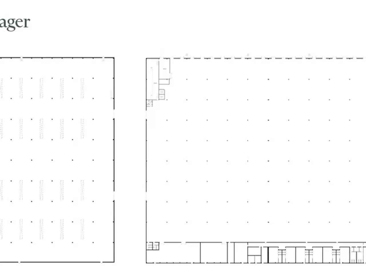
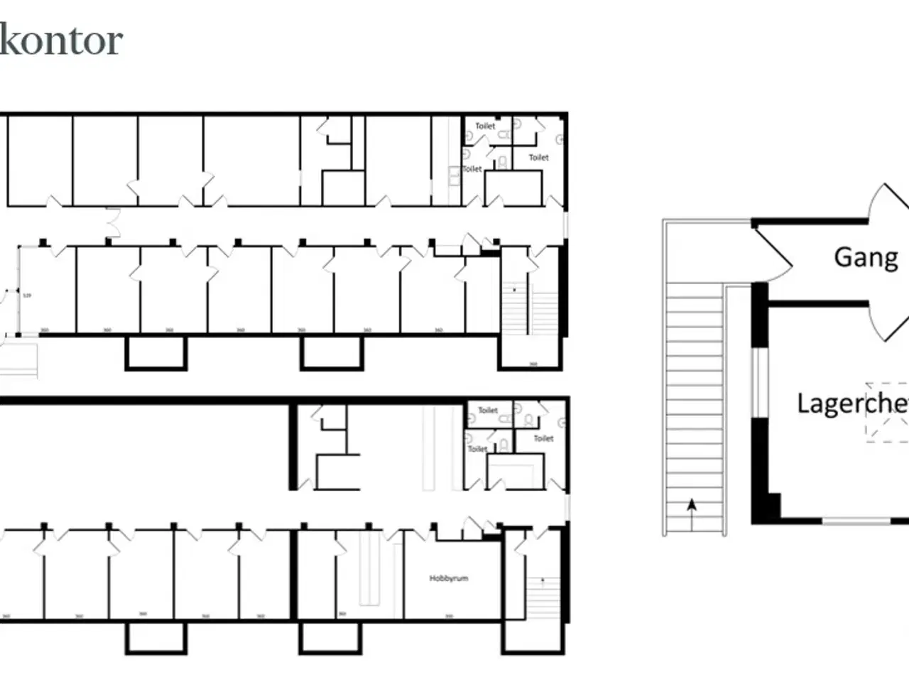
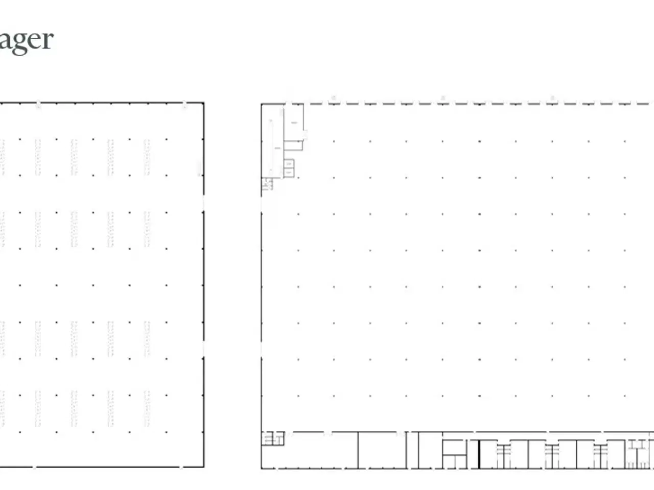
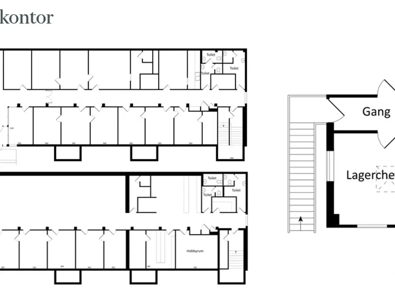
Lejemålet tilbyder logistikfaciliteter med tilhørende kontorlokaler til leje med direkte adgang til motorvej E20. Lejemålet udgør 30.248 kvadratmeter, hvoraf 3.246 kvadratmeter er kontorareal. Kontoret er lyst og højloftet med god akustik og lysindfald. Der er mulighed for at ændre indretningen af kontordelen, så det tilpasses til lejers individuelle behov. Lageret kan opdeles i henholdsvis 14.028 m2 og 12.227 m2. Ejendommen har flere igangværende renoveringsprojekter. Dette indebærer udvendig malingbehandling af facader, sokler, udhæng, stålkonstruktioner, vinduer m.m. samt måling af lysniveau og udskiftning af lyskilder til LED. Samtidig udskiftes udvendige lyskilder ved læsseramper og defekte udvendig belysning fra master på terræn. Køle- og sprinkleranlæg opgraderes og de elektriske installationer gennemgås herunder tavler, røgventilation og CTS automatik. Derudover laves funktionstest og reparation af automatiske hejseporte og hydrauliske ramper. Ligeledes renoveres installationer i varmecentral og gaskedler bliver konverteret til varmepumpe, mens gamle installationer i boilerrum fjernes. Der pålægges helt nyt tag og alt asfalt repareres. Desuden registres eksisterende brandforhold og mulige opdelinger af nye brandsektioner angives.
Flere detaljer






























