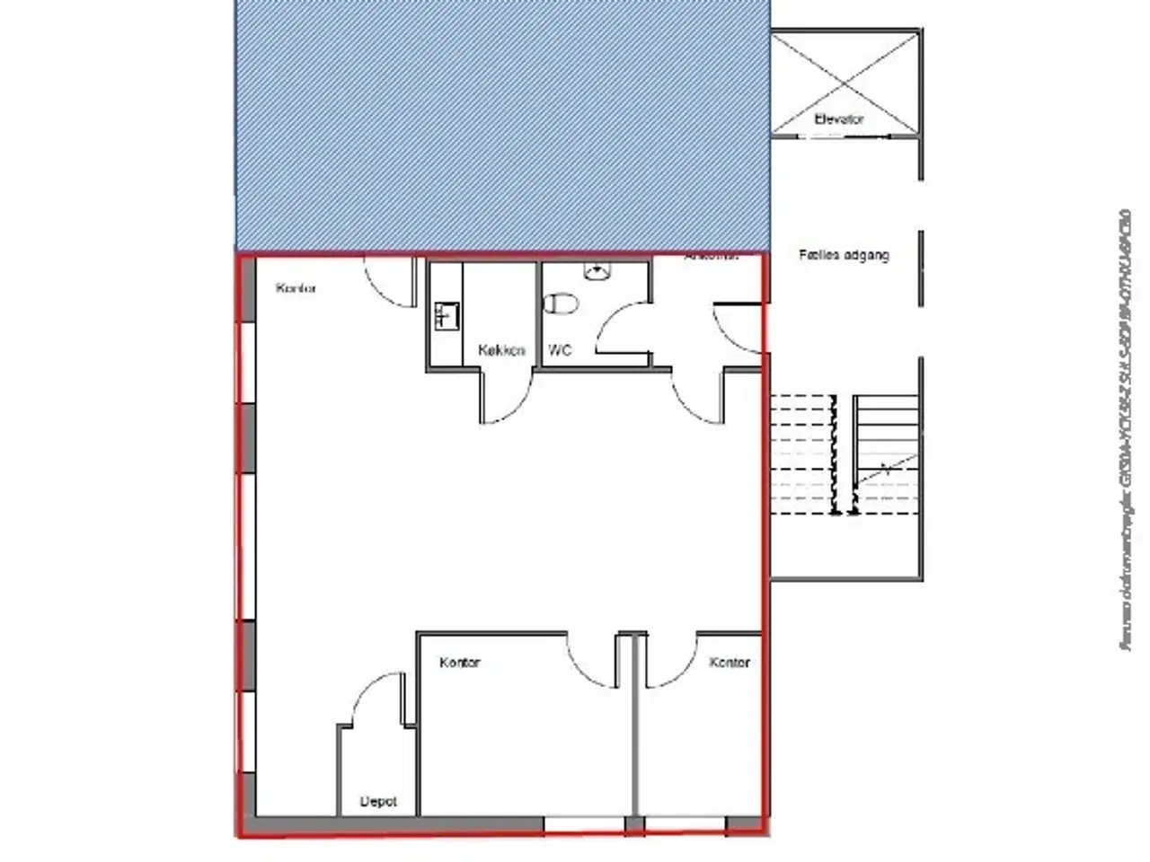
125 m² flotte istandsatte kontorlokaler til leje i Middelfart Midtpunkt
5.156 kr.
Beboelsesvogne fra Simple Homes
Udlejning til bl.a. privatgenhusning - høj service og hurtig levering
UDLEJNING AF BEBOELSESVOGNE
Vi udlejer vogne, lifte, Mobile badeværelser, Mandskabsvogne og Kontor-/spisevogne
Jernbanegade 75-77, også kaldet Middelfart Midtpunkt, er en velplaceret ejendom på 125 m² beliggende i centrum af Middelfart og kun få minutters gang fra gågaden, hvor mange sundhedsfag og virksomheder har til huse. Lejemålet som er beliggende på første salen centralt i bygningen, kan tilgås via trappe eller med elevator. Det er et lejemål med mange spændende og forskellige naboer som tandlæger, fysioterapeuter, speciallæger, Fagforening m.fl. Der er i lejemålet god garderobe med toilet, hvor fra der er adgang til stort åbent kontor med mulighed for kontorfællesskab med plads til ca. 10 kontorpladser, et lukket kontor samt et mødelokale. I lejemålet er der etableret tekøkken og depotrum, men det er muligt efter nærmere aftale, at tilpasse lejemålets indretning. Et virkelig godt lejemål, med mange anvendelsesmuligheder. Kontakt os helt uforpligtende og få en god snak om dit lokalebehov og ejendommens muligheder
Flere detaljer
























