Holte station – Unik mulighed
13.658 kr.
Beboelsesvogne fra Simple Homes
Udlejning til bl.a. privatgenhusning - høj service og hurtig levering
UDLEJNING AF BEBOELSESVOGNE
Vi udlejer vogne, lifte, Mobile badeværelser, Mandskabsvogne og Kontor-/spisevogne
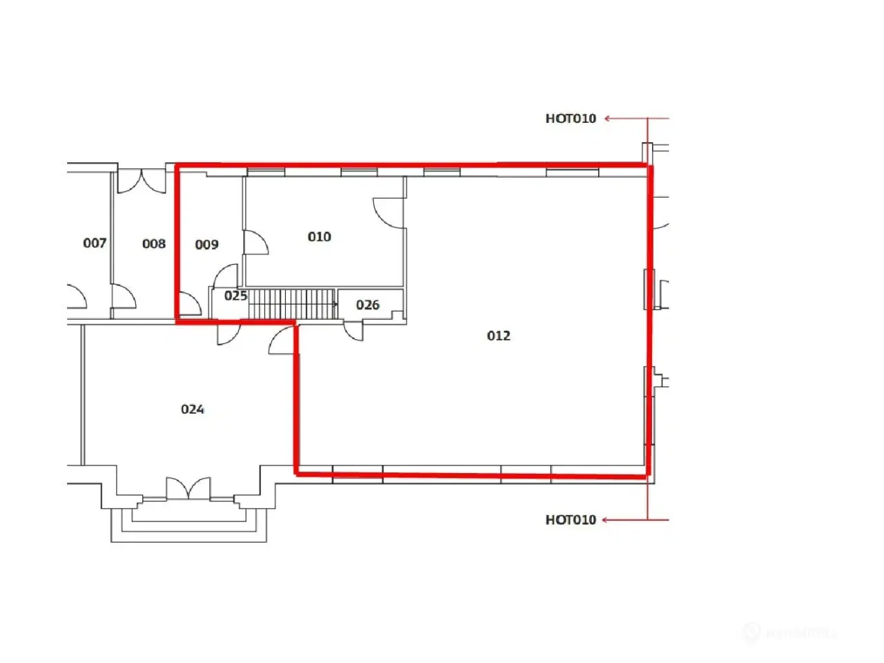
**Holte station søger ny café / spisested....** En af S-togsnettets mest markante stationer skal have ny lejer, som vil noget for de mange rejsende. Holte station er en flot ikonisk station, hvorfra flere hundrede pendlere hver dag tager toget til og fra arbejde. Læg dertil de mange, som tager bussen. Plus unge og studerende og beboere fra nærområdet. Kort sagt er der en unik mulighed for at etablere en ny destination for Holte og omegn. Om lejemålet: 149,9 regulære m<sup>2 </sup>fordelt som følger: - Ét stort butikslokale (111,4 m<sup>2</sup>) - To rum til personale og lager (32,5 m<sup>2</sup>) - Mindre rum til fx rengøringsudstyr (3 m<sup>2</sup>) - Toilet på 1. sal (3 m<sup>2</sup>) - ikke vist Det store og indbydende butikslokale vender direkte mod perronnedgang og tilbyder stor synlighed. Del af lokale 024 kan evt. indgå som del af lejemålet (se plantegning). Fungerer i dag som gennemgang / adgang til 1. sal. Desuden mulighed for leje af ekstra lokale på 1. sal (26 m<sup>2</sup>) til fx lager / opbevaring. **Ledige lejemål på S-togsstationer er sjældne. Så hvis du vil være blandt dem, der bliver indstillet, hører vi gerne fra dig snarest.** Bemærk: Kun lejere, som vil drive café / spisested, kommer i betragtning. Lejen er inkl. driftsomkostninger. Venligst send følgende ved henvendelse: - Ønsket sortiment - Forventet omsætning (inkl. moms) - Markedsføringsplan - Ønsket overtagelsesdato for lejemålet. - Gyldigt / eksisterende cvr. nr.
Se annoncen hos forhandlerenFlere detaljer
Om boligen
- Produkttype
- Erhvervslokaler

























