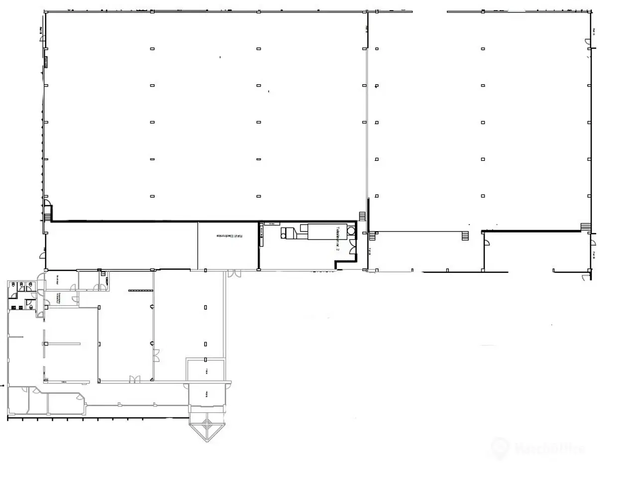
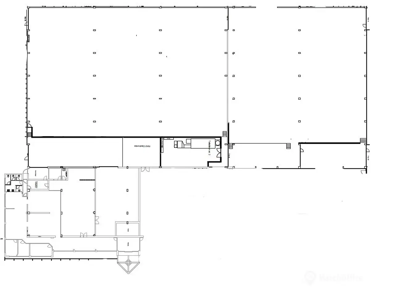
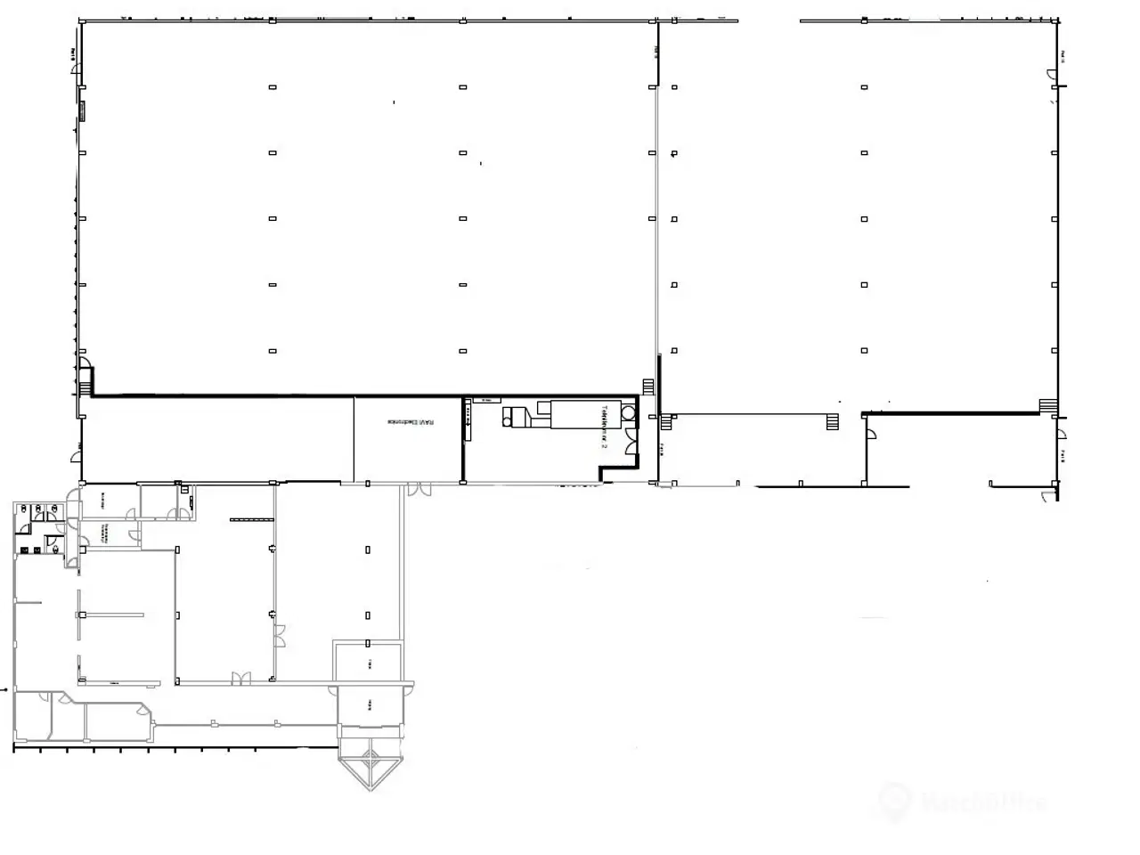
Mineralvej 2A, 9220 Aalborg Øst,
3500 m2 lager/produktion samt 620 m2 kontor
137.333 kr.
Beboelsesvogne fra Simple Homes
Udlejning til bl.a. privatgenhusning - høj service og hurtig levering
UDLEJNING AF BEBOELSESVOGNE
Vi udlejer vogne, lifte, Mobile badeværelser, Mandskabsvogne og Kontor-/spisevogne
Stort regulært lager med kontor udlejes. Meget præsentabelt lejemål med optimal beliggenhed tæt ved motorvej og by. Der er 4 store porte til lager/produktionshallen.
Se annoncen hos forhandleren
Flere detaljer
Lokalebasen.dk er Danmarks førende formidler af erhvervslejemål. Vi er en uafhængig portal, der samler danske erhvervslokaler af enhver slags, så du nemt kan få overblik over markedet.
Vi...

























