Regulært lagerlejemål med portadgang
53.192 kr.
Beboelsesvogne fra Simple Homes
Udlejning til bl.a. privatgenhusning - høj service og hurtig levering
UDLEJNING AF BEBOELSESVOGNE
Vi udlejer vogne, lifte, Mobile badeværelser, Mandskabsvogne og Kontor-/spisevogne
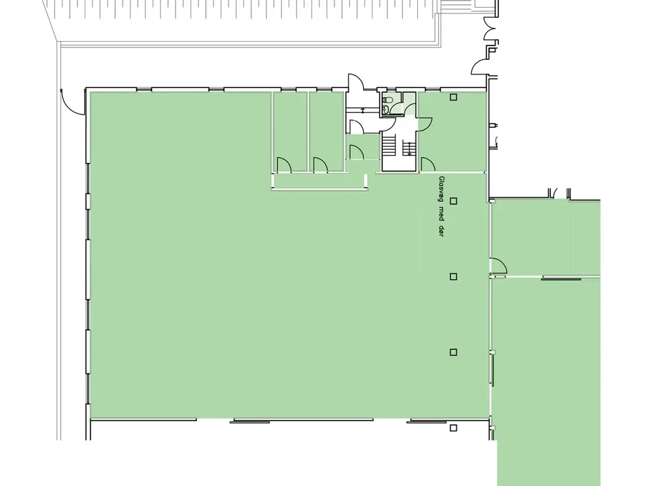
**Lyst og rummeligt lejemål tæt på motorvej** I Brabrand finder du dette funktionelle og rummelige lejemål på 982 m², der rummer alt, hvad en lager- eller produktionsvirksomhed har brug for. Størstedelen af arealet er indrettet som et stort, regulært lager med høj loftshøjde og god portadgang, der gør håndtering af varer enkel og effektiv. Dertil kommer en række mindre rum, som med fordel kan bruges som kontorer, mødefaciliteter eller mindre værksteder – fleksibelt efter behov. Lejemålet ligger i et velfungerende industrikvarter, hvor adgangsforholdene er optimale, og du kan parkere lige uden for døren. Udenfor finder du desuden gode, befæstede arealer med plads til kørsel og opbevaring. Som en ekstra kvalitet har ejendommen en hyggelig, fælles gårdhave, der giver mulighed for en pause i grønne omgivelser. Lejemålets energimærke er angivet til: C
Se annoncen hos forhandlerenFlere detaljer
Om boligen
- Produkttype
- Erhvervslokaler
























