Flot kontor- og lagerlejemål i en industriejendom
32.581 kr.
Beboelsesvogne fra Simple Homes
Udlejning til bl.a. privatgenhusning - høj service og hurtig levering
UDLEJNING AF BEBOELSESVOGNE
Vi udlejer vogne, lifte, Mobile badeværelser, Mandskabsvogne og Kontor-/spisevogne
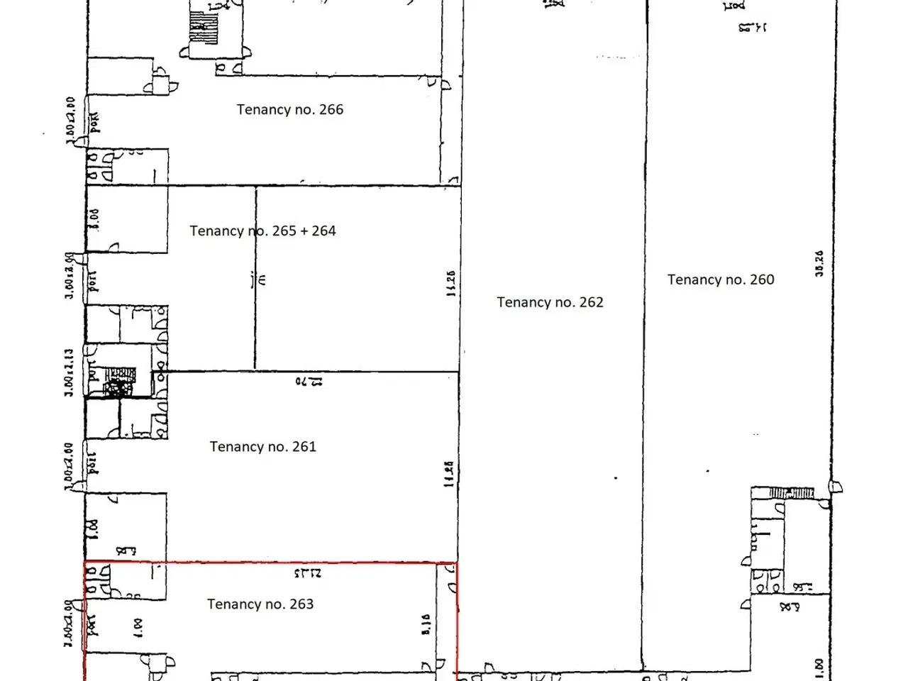
OM EJENDOMMEN Stor flerbrugerejendom som er anvendt til lager og kontor. Ejendommen er ydermere velbeliggende i Hedehusene med gode forbindelser til den tætliggende infrastruktur. Inden for kort afstand er det muligt at komme til Holbækmotorvejen og Roskildevej, som giver god adgang til resten af motorvejsnettet og indre København. Der er ydermere gode muligheder for parkering på ejendommen. Offentligt transport er også en god mulighed, med flere buslinjer lige ved siden af ejendommen, som blandt andet kører til Hedehusene station. Fra Hedehusene station kører der flere regionaltoge, som gør det let at komme til København og resten af Sjælland med tog. OM LEJEMÅLET Lejemålet er beliggende i ejendommens stueetage og på ejendommens 1. sal. Den andel af lejemålet i stueetagen er på 389 kvm, og består primært af en lagerområde, hvor der både er lav- og højloftede områder. Der er gode adgangsmuligheder til denne del af lejemålet, via en port. På ejendommes stueetage, er der ydermere et mindre kontorlokale på 19 kvm. På ejendommens 1. sal er der et lavloftet lagerområde, som er oplagt til let opbevaring. På 1. salen er der også et kontorområde, som primært består af flere små kontorlokaler. På 1. salen er der adgang til eget toilet og tekøkken. Der er ved at blive indlagt fjernvarme, hvorfor varmeudgifterne forventes at blive lavere. INFRASTRUKTUR MED TOG - Der er ca. 1,5 km til Hedehusene St. hvorfra der kører flere regionaltoge. MED BUS - Inden for gåafstand er det muligt at komme til buslinje 93N og 123. I BIL - Lige ved siden af ejendommen ligger Roskildevej og Holbækmotorvejen. Lejemålets energimærke er angivet til: B
Flere detaljer





















