INGEN BINDING - Lyst og indbydende kontorlejemål på Strøget på 114 m²
21.850 kr.
Beboelsesvogne fra Simple Homes
Udlejning til bl.a. privatgenhusning - høj service og hurtig levering
UDLEJNING AF BEBOELSESVOGNE
Vi udlejer vogne, lifte, Mobile badeværelser, Mandskabsvogne og Kontor-/spisevogne
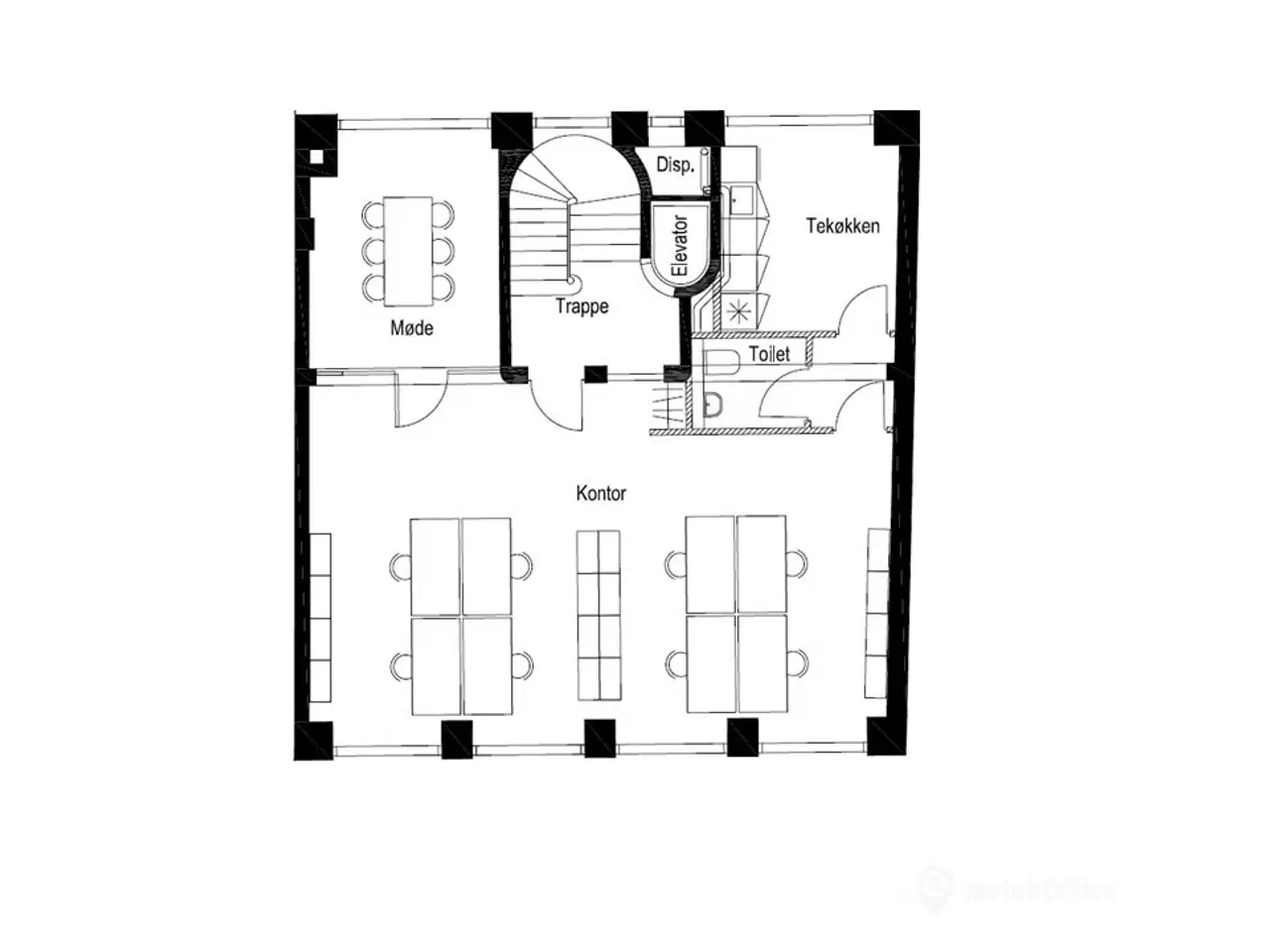
**Totalistandsættes - Yderst centralt beliggende med store vinduespartier mod strøget og elevator** Lyst, indbydende og total nyistandsat kontorlejemål på 114 m² indeholdende storrumskontor med plads til 8 arbejdsstationer, separat kontor/ mødelokale, flot nyt køkken samt pænt nyt toilet. Derudover mindre depotrum på trappen. Særdeles centralt beliggende på strøget med kun 200 meter til Rådhuspladsen med metrostation og 50 meter til Gammeltorv/ Nytorv. Derudover kun 600 meter til Nørreport og 750 meter til Københavns Hovedbanegård. Lejemålet er netop gennemgribende istandsat og er klar til indflytning og det er ligeledes muligt at leje 114 m² på 1.sal. Der er således mulighed for at leje 114 m² på én etage eller 228 m² fordelt over 2 etager. Opgangen er pæn og præsentabel og indeholder desuden elevator til etagerne. Mulighed for leje af 14 m² højloftet depotrum i ejendommens kælder. **Afstande:** Bus: 0,2 km. Tog: 0,6 km. S-tog: 0,6 km. Metro: 0,2 km. Motorvej: 5,0 km. Lejemålets energimærke er angivet til: D
Flere detaljer
Om boligen
- Produkttype
- Erhvervslokaler




























