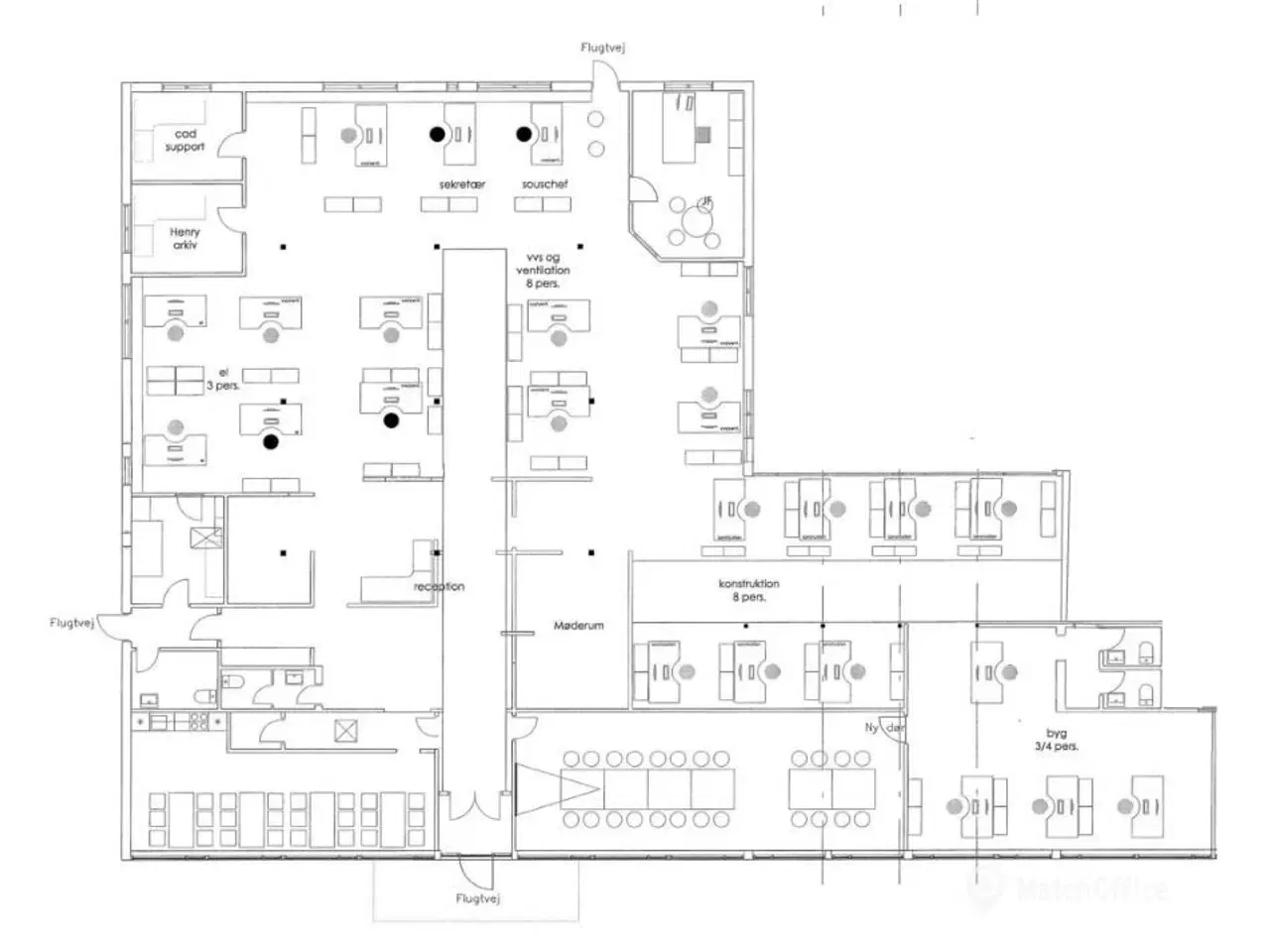
Stort. lyst kontorlandskab - i alt ca. 680 kvm
36.833 kr.
Beboelsesvogne fra Simple Homes
Udlejning til bl.a. privatgenhusning - høj service og hurtig levering
UDLEJNING AF BEBOELSESVOGNE
Vi udlejer vogne, lifte, Mobile badeværelser, Mandskabsvogne og Kontor-/spisevogne
Flotte og velbeliggende kontor- eller kliniklokaler på ca. 680 kvm i udkanten af Viborgs industriområde og tæt på Rådhuset. Lejemålet indeholder adgangsområde med reception, åbent kontorlandskab, enkeltmandskontorer, mødelokaler, kantine og toiletter. Beliggende i veludbygget erhvervsområde og tæt på indkøb, apotek og bager. God lukket gårdhave. Gode parkeringsforhold lige uden for døren.
Se annoncen hos forhandlerenFlere detaljer






















