325 m² nyrenoveret erhvervslejemål i København S
50.104 kr.
Beboelsesvogne fra Simple Homes
Udlejning til bl.a. privatgenhusning - høj service og hurtig levering
UDLEJNING AF BEBOELSESVOGNE
Vi udlejer vogne, lifte, Mobile badeværelser, Mandskabsvogne og Kontor-/spisevogne
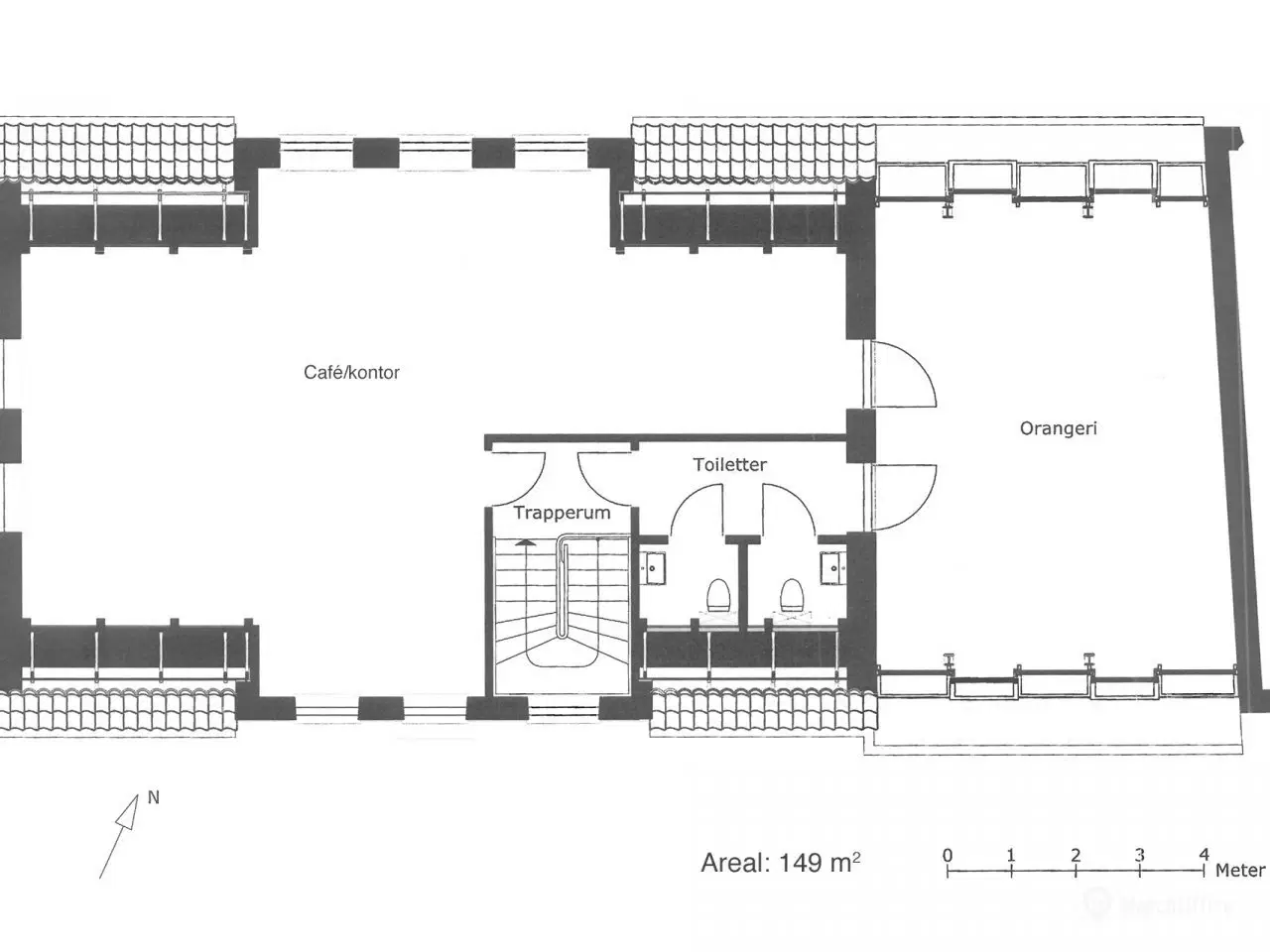
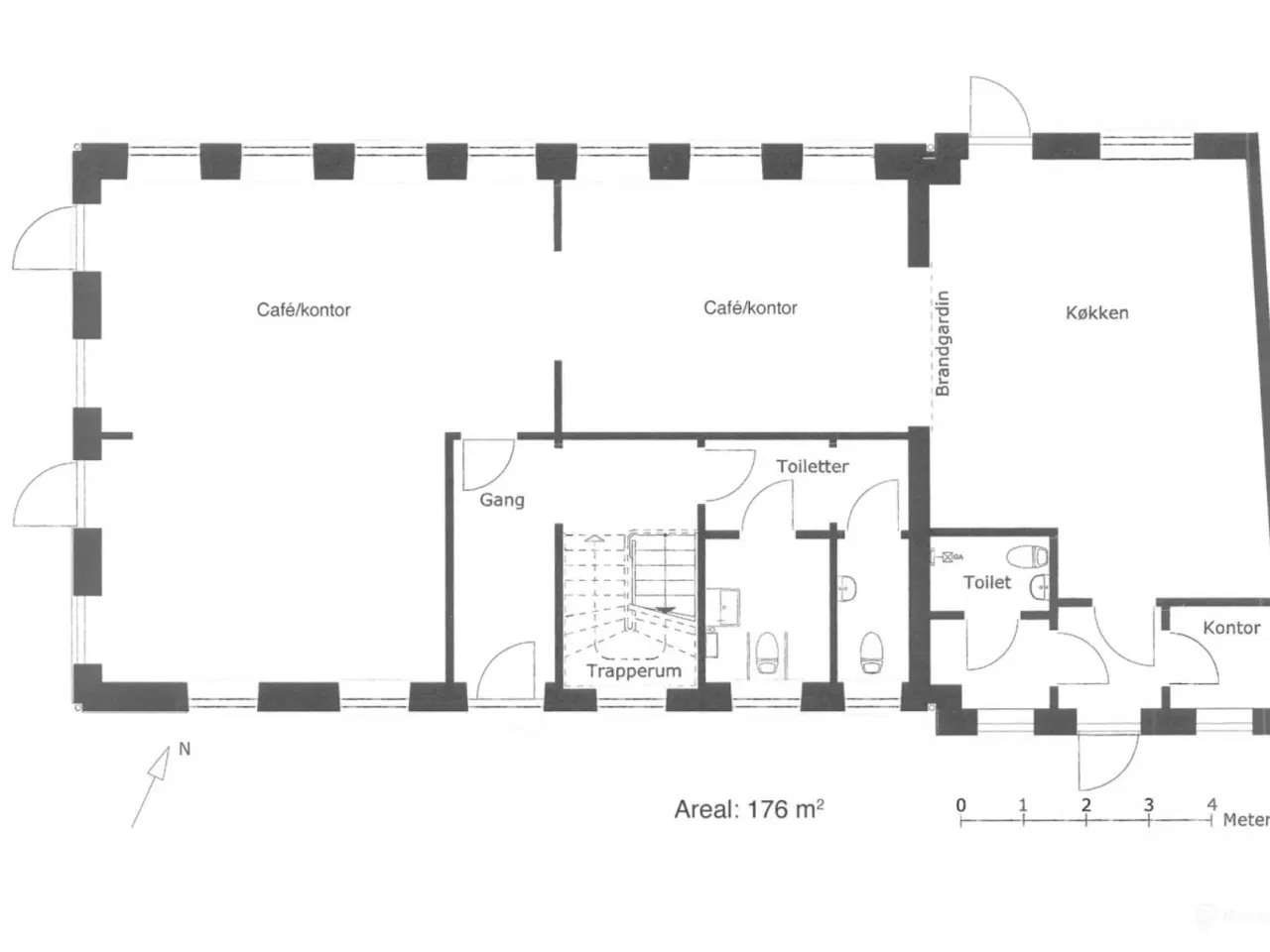
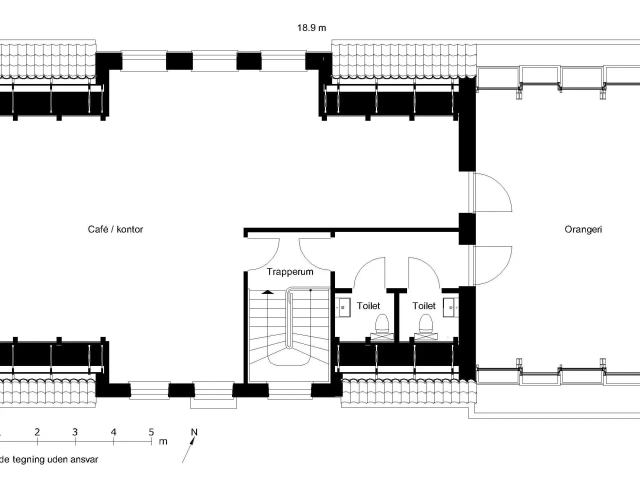
Ønsker du at etablere din virksomhed i en smuk og historisk ejendom? Byggeselskab Mogens de Linde tilbyder nu en enestående mulighed for at drive din virksomhed i en charmerende villa fra 1917, der for nyligt er blevet totalrenoveret og opgraderet med flotte detaljer som pudsede teglstensvægge, massive plankegulve, fritlagte bjælker og endda et orangeri. **Området** Den skønne villa-ejendom er velbeliggende i Sadolin Parken på Amager, med en fremtrædende facade ud mod Holmbladsgade. Sadolin Parken har undergået en omfattende transformation de sidste 10 år og er i dag hjemsted for en blanding af kontorer, boliger og detailhandel i historiske og dels nybyggede ejendomme. Holmbladsgade-kvarteret er kendt for sin mangfoldighed af virksomheder inden for IT, medie og kommunikation, håndværk og service. Det er et levende og dynamisk område, der er perfekt til at understøtte din virksomheds vækst og succes. Amager Øst er en af de største bydele i Københavns Kommune og har et pulserende byliv med over 56.000 indbyggere. Lergravsparken og Amagerbro metrostationer ligger i kort afstand for ejendommen og kan nås på kun 5 minutter til fods. Der er også gode bybusforbindelser i området, så transport til og fra ejendommen er nemt og bekvemt. Og hvis du har brug for parkeringspladser, er der mulighed for at leje dem i Sadolin Parken. **Ejendommen** Den smukke og velholdte ejendom fra 1917 er opført som en 1½ etages-bygning. Bygningen er blevet renoveret og ombygget af flere omgange, og i begyndelsen af 1942 blev gavlkvisten mod Holmbladsgade etableret. I 2020 gav Byggeselskab Mogens de Linde ejendommen en velfortjent totalrenovering med bl.a. nye flagvinduer med sprosser, tagsten, dørpartier, massive plankegulve, pudsede teglstensvægge, New Yorker glasvægge og fritlagte bjælker. I samme anledning blev der opført et nyt orangeri på 1. sal med glastag mod nord og syd. Ejendommen tilgås fra Holmbladsgade gennem udvendige døre fra p-plads eller fra gården mellem 70E og 70D. Belægning omkring bygningen består af eksisterende asfalt, brosten og fliser. Facaden er pudset og hvidmalet og taget er dækket med nye røde danske vingetegl. **Lejemålet** Lejemålet overtages istandsat og henvender sig til virksomheder, der ønsker at drive sin virksomhed fra en charmerende ejendom i København S. Lokalerne har hidtil været indrettet til restaurant/café, men kan efter behov ændres til drift af butik/ kontor/ showroom. Lejemålet strækker sig over to etager og har en samlet størrelse på 325 m². Stueetagen udgør 176 m² og indeholder produktionskøkken (frokoststue, hvis anvendt til kontor/showroom), café/kontor med bar, fordelingsgang samt toiletter til både kunder og personale. Adgang til 1. salen på 149 m² sker via en elegant halvsvingstrappe, og her finder man yderligere område til café/kontor, toiletter og et orangeri. Ejendommens udenomsareal mod øst er udstyret med et grusbelagt område, hvor der er mulighed for udeservering. Hvis du er interesseret i at se mere eller ønsker at leje ejendommen, er du velkommen til at kontakte os for yderligere information.
Flere detaljer


































Ny