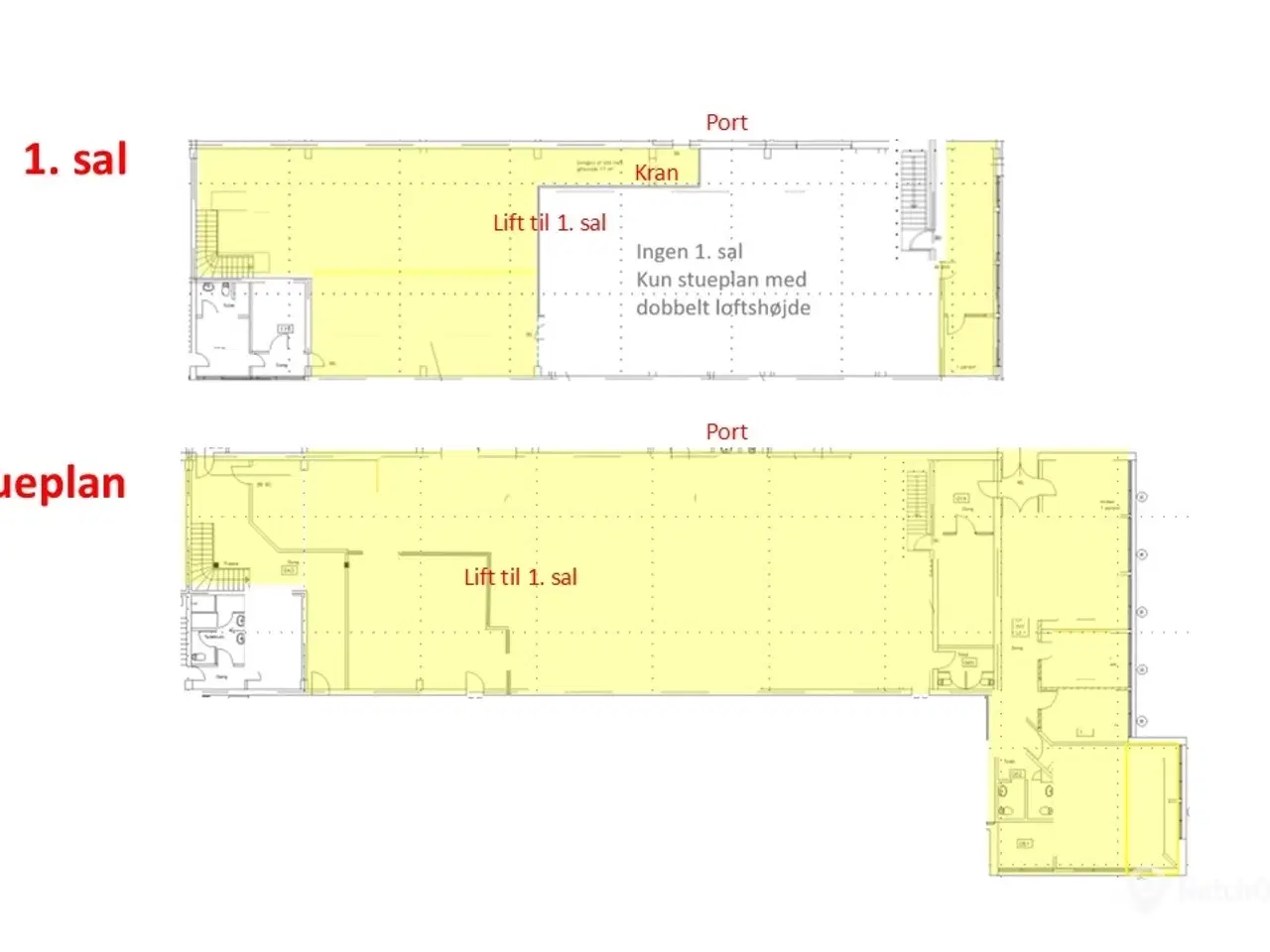
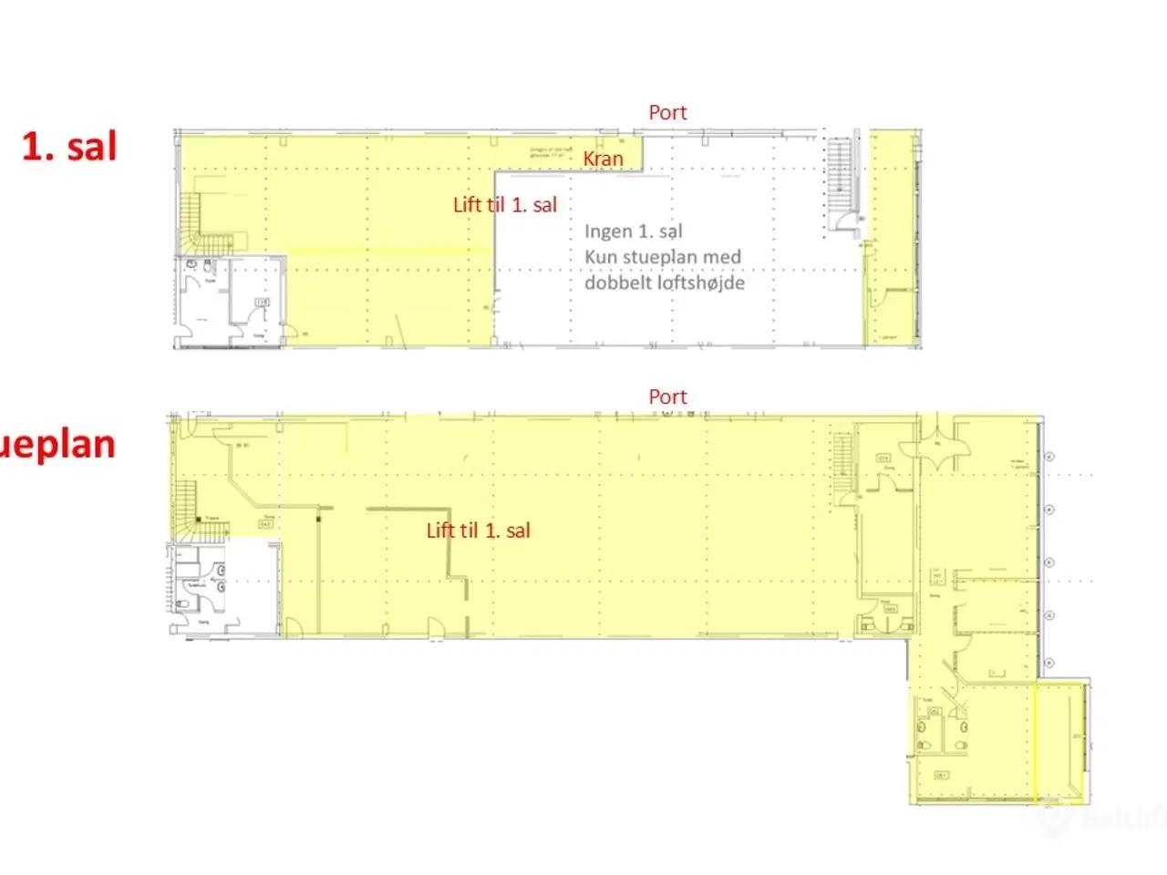
Autoværksted. værksted eller Lager. Stort udeareal til præsentation af biler
57.365 kr.
Beboelsesvogne fra Simple Homes
Udlejning til bl.a. privatgenhusning - høj service og hurtig levering
UDLEJNING AF BEBOELSESVOGNE
Vi udlejer vogne, lifte, Mobile badeværelser, Mandskabsvogne og Kontor-/spisevogne
Autoværksted, værksted eller Lager. Stort udeareal til præsentation af biler - Højloftet hal med port - Kran som dækker hele hallens længde - Mekaniker bad-, toilet og omklædning - Kantine med køkken - 2 stk. kontorer - Kundemodtagelse med venteværelse og toiletter - Mulighed for auto-opladning - Stort udeareal til præsentation af biler - I samme bygning er følgende også til leje: - 680 kvm showroom / forretning på 1. sal - 157 kvm underetage - Plads til 3 stk. 40 fods containere /containerpladser. Vi fremviser med kortvarsel -også aften og weekend! .
Se annoncen hos forhandlerenFlere detaljer
Om boligen
- Produkttype
- Erhvervslokaler





























