Højloftet lager. showroom med port samt stort kontor
14.950 kr.
Beboelsesvogne fra Simple Homes
Udlejning til bl.a. privatgenhusning - høj service og hurtig levering
UDLEJNING AF BEBOELSESVOGNE
Vi udlejer vogne, lifte, Mobile badeværelser, Mandskabsvogne og Kontor-/spisevogne
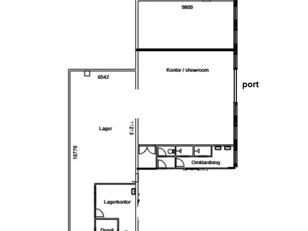
**Velbeliggende ejendom, centralt placeret på synlig hjørnegrund i veletableret erhvervsområde få hundrede meter fra motorvejsafkørsel 27 i Greve N og med offentlig transport i området. ** - Lejemålet består af ca. 110 m2 lyst, højloftet lager (uden port) med værkførerkontor. Frihøjde i lageret u/d 4,77 m og o/d ca. 5,5 m, ovenlys og kørefast betongulv. Mål ca. L 16,80 x B 6,55 m - Showroom ca. 140 m2 inkl. kontor med alm. lofthøjde ca. 2,95-2,70 m og port med dør, H 2,45 x B 2,31 m. Betongulv med epoxymaling. Mål ca. 14,30 x 9,80 m - Stort lyst kontor med tæppebelægning - Tekøkken, toilet og bad ca. 26 m2 - Lejemålet kan overdrages nyistandsat på nærmere aftalte vilkår og frigøres pr. 30/4-2026. Ved ejendommen forefindes fælles rampepladser, der vil være mulige at benytte ifølge nærmere aftale. Der lejes ikke ud til MC og autobranchen. Området er beliggende tæt på motorvejsnettet E20/E47 med kort afstand til både til- og frakørsel 27 Greve Nord samt Ishøj sammenfletningen, Holbækmotorvejen mv. og under 25 km til lufthavnen. Lejemålets energimærke er angivet til: A2010
Se annoncen hos forhandlerenFlere detaljer
Om boligen
- Produkttype
- Erhvervslokaler

























