Kontor / Showroom
35.000 kr.
Beboelsesvogne fra Simple Homes
Udlejning til bl.a. privatgenhusning - høj service og hurtig levering
UDLEJNING AF BEBOELSESVOGNE
Vi udlejer vogne, lifte, Mobile badeværelser, Mandskabsvogne og Kontor-/spisevogne
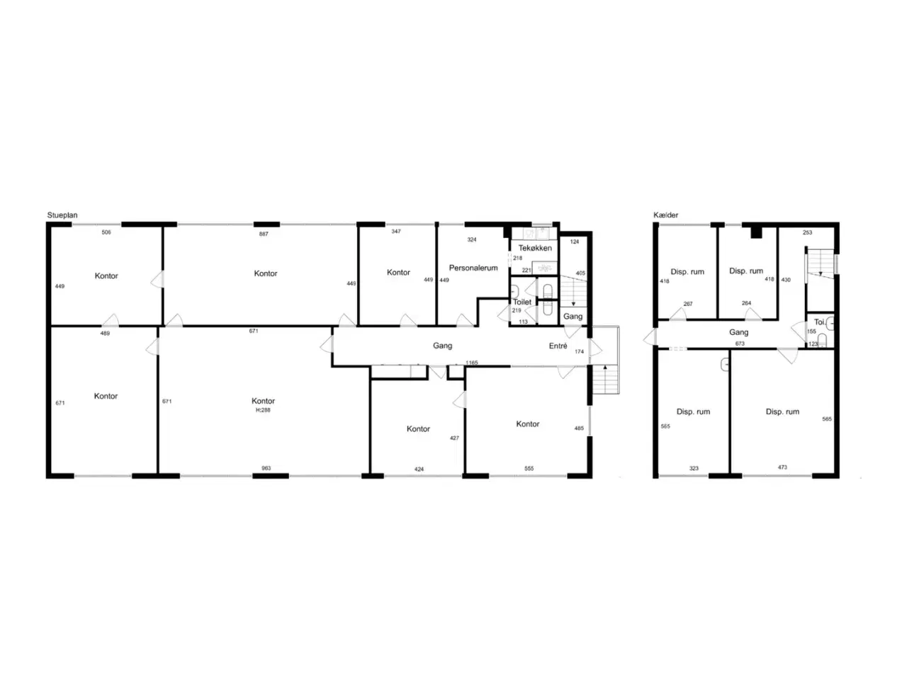
Lejemålet er beliggende i præsentabel nyistandsat erhvervsejendom i erhvervsområde med utrolig let adgang til motorvejssystemet og offentlig transport. Ejendommen er indrettet med fordelingsgang med adgang til 8 forskellige kontorer/mødelokaler/showrooms. Det ene er med adgang til køkken, hvorfor det med fordel kan benyttes til personale- og spiserum. I gangen er desuden indbyggede skabe til brug for henholdsvis garderobe og opbevaring. Fra fordelingsgangen er ligeledes adgang til 2 toiletter og adgang til arkivplads i kælderen, hvor der er 4 separate rum. Der er desuden 1 toilet i kælderen. Hele lejemålet er utrolig lyst med store vinduer hele vejen rundt. Lejemålet er nyistandsat med hvide lofter med indbygget lys, hvide vægge og gulvbelægning af linoleum med moderne look og som er let at holde og blødt at gå på. Udvendigt fremstår ejendommen flot nymalet i en koksgrå farve, og har desuden fået nyt tag. Der er 5 egne parkeringspladser foran ejendommen. Lejemålet opvarmes med fjernvarme. Et rigtig flot lejemål velegnet til kontor, showrom eller en kombination.
Se annoncen hos forhandlerenFlere detaljer
Om boligen
- Produkttype
- Erhvervslokaler
























