Velbeliggende ejendom i et eftertragtet erhvervskvarter i Rødovre og i kort afstand til København.
4.983 kr.
Beboelsesvogne fra Simple Homes
Udlejning til bl.a. privatgenhusning - høj service og hurtig levering
UDLEJNING AF BEBOELSESVOGNE
Vi udlejer vogne, lifte, Mobile badeværelser, Mandskabsvogne og Kontor-/spisevogne
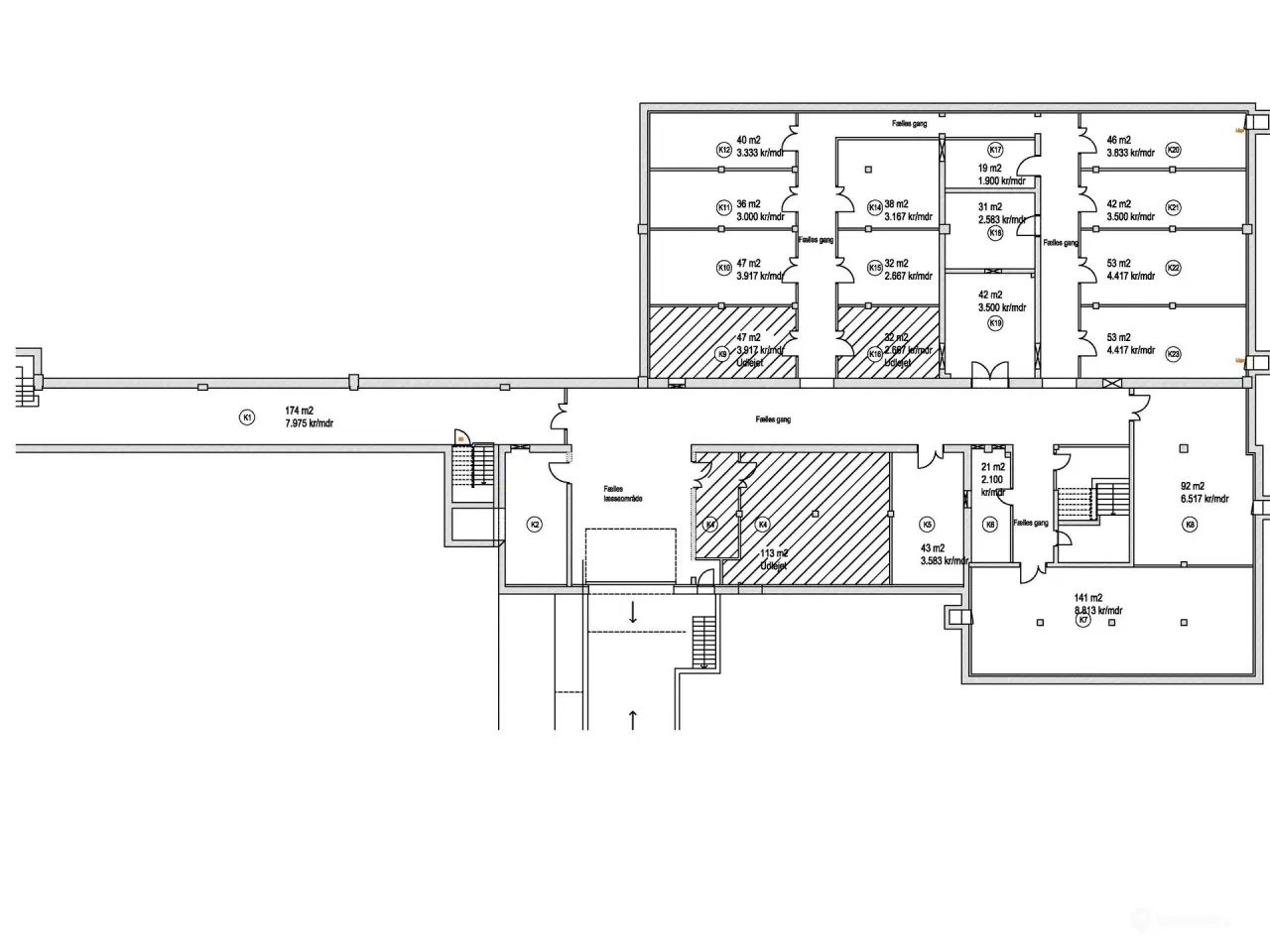
OM EJENDOMMEN Ejendommen er placeret på Islevdalvej i Rødovre – bedre kendt som ”Engros street” Her for du endelig muligheden for at leje et mindre lager i attraktiv ejendom med en unik placering. Ejendommen består af engrosbutikker, lagerenheder samt kontorer. Hele ejendommen fremtræder i god stand og henvender sig til mange forskellige Ejendommen er velbeliggende i et populært erhvervsområde i Rødovre. Herfra er der gode forbindelser til Motorring 3 og Frederikssundmotorvejen, som let adgang til at komme til og fra med varer. Inden for kort afstand kan man også komme til Islev station, eller tage med buslinje 142 og 161. OM LEJEMÅLET Flotte lagerlokaler der fremstår helt nyistandsatte med nyt epoxygulv, hvide vægge og ny LED-belysning. Her er der ledige lokaler i varierende størrelse fra 19 kvm og helt op til 141 kvm. Lejemålene har en god lofthøjde på ca. 3 meter, og de er alle let tilgængelige via en rampe, hvor det er muligt at kører ned med en bil eller lignende. Til hver af lejemålene er der en bred dobbeltdør på ca. 1,2 meter, som gør det let at komme ind og ud med vare. Her er der mange gode størrelser lagerlejemål med mange forskellige anvendelsesmuligheder. Her kan håndværkeren opbevarer sit værktøj mv. og for webshoppen er dette lager også ideelt. INFRASTRUKTUR MED BUS - Der er ca. 100 m til nærmeste busstoppested, hvor linje 142 og 161 kører. MED TOG - Der er ca. 3 km til Islev st., hvor S-togslinjerne C og H kører. I BIL - Der er god adgang til motorvejsnettet med ca. 700 m til Motorring 3 og Frederikssundmotorvejen. Kontakt os for mere info. Medlem af Dansk Ejendomsmæglerforening
Flere detaljer

















