Ref: 156 Kontormodul
80.000 kr.
Beboelsesvogne fra Simple Homes
Udlejning til bl.a. privatgenhusning - høj service og hurtig levering
UDLEJNING AF BEBOELSESVOGNE
Vi udlejer vogne, lifte, Mobile badeværelser, Mandskabsvogne og Kontor-/spisevogne
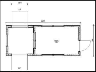
Ref: 156 Velindrettet og funktionelt kontormodul på 28,2 m², ideelt til både mindre virksomheder, byggepladser eller midlertidige faciliteter. Modulet indeholder et praktisk te-køkken samt to separate rum: et lyst opholdsrum/kontor på 15 m² og et kontor på 11 m², hvilket giver gode muligheder for både arbejdsplads og mødefaciliteter. Der er installeret belysning og strøm i hele modulet, så det er klar til øjeblikkelig ibrugtagning. Indeholder desuden varmepumpe, som sikrer et behageligt indeklima året rundt. Store vinduespartier langs siden og i gavlen giver et godt naturligt lysindfald, og indgangsdøren er placeret praktisk i gavlen. Perfekt løsning til dig, der har brug for et fleksibelt, funktionelt og indflytningsklart kontormodul. L: 960 B: 300 H: 300
Se annoncen hos forhandlerenFlere detaljer
Om boligen
- Produkttype
- Beboelsesvogne









Ny
Ny



