Imponerende og kompromisløst kontorlejemål
243.278 kr.
Beboelsesvogne fra Simple Homes
Udlejning til bl.a. privatgenhusning - høj service og hurtig levering
UDLEJNING AF BEBOELSESVOGNE
Vi udlejer vogne, lifte, Mobile badeværelser, Mandskabsvogne og Kontor-/spisevogne
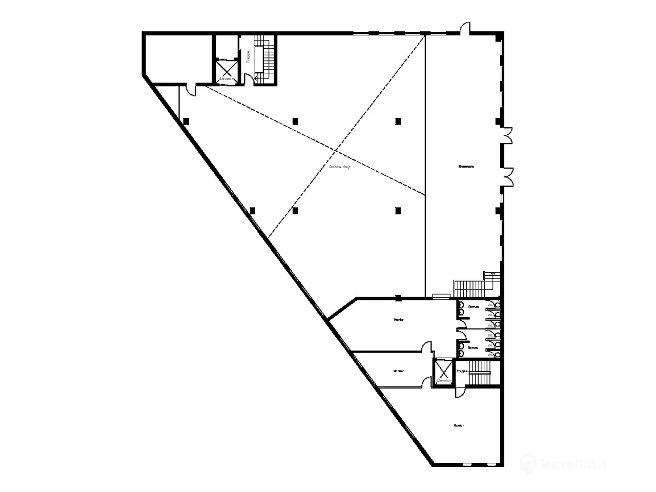
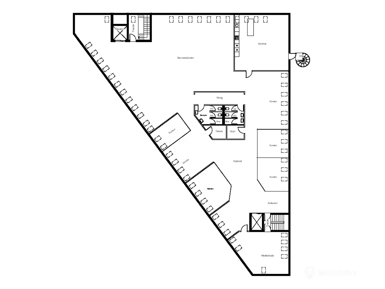
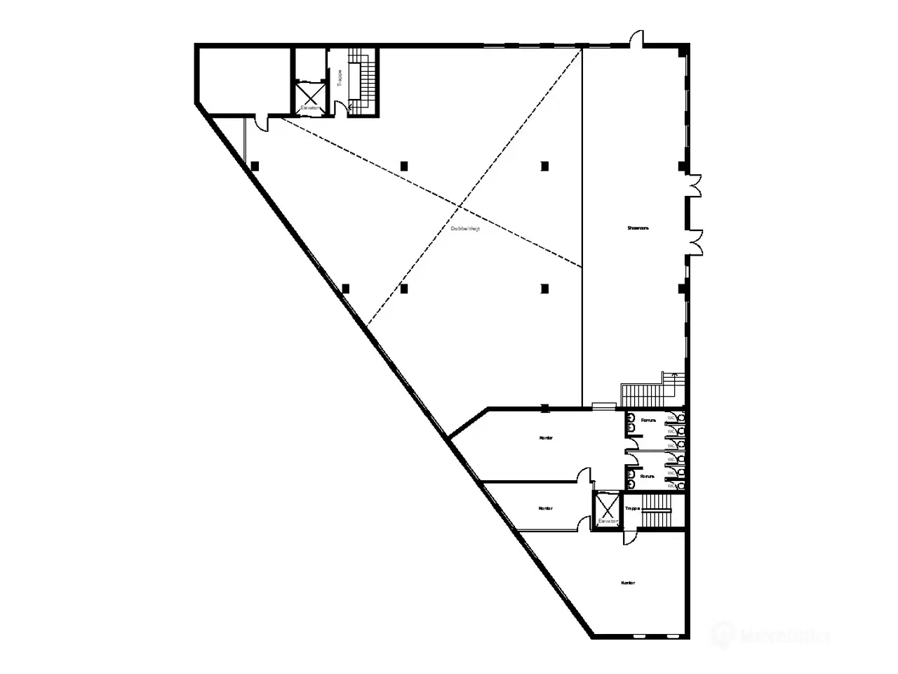
**Velkommen indenfor** Med dette ejendomsdomicil får i 2934m2 stort moderne kontor miljø, samt showroom fordelt på 4 etager. Med plads til 75 medarbejdere er der massere plads at boltre sig på. Ejendommen på byder på en lang række gode faciliteter, herunder vare- og personaleelevator, moderne og stilrigtige løsninger, en god planløsning med masser af indretningsmuligheder, og parkering rundt om ejendommen. Med en placering i hjertet af Herlev og tæt på motorvej, samt bus- og togforbindelser, herunder den nye letbane, er det let at komme til og fra arbejde. Lejemålet er nyistandsat med fokus på at sikre det bedste indeklima for dine medarbejdere med et åbne, lyse og hyggelige lokaler, der bidrager til det gode arbejdsmiljø. **Her bliver kaffen brygget sammen med de gode ideer** Et flot køkken med moderne faciliteter fra Svane-Køkkenet er med til at skabe en behagelig og hyggelig arbejdsplads, og danner et helt naturligt samlingspunkt. Der er desuden rigeligt med parkering rundt om ejendommen, hvilket gør det nemt for både medarbejdere og besøgende at komme til kontoret. **I hjertet af Lyskærs virksomhedskvarter** Med kontorlejemål i Herlev får I en central placering tæt på Ring 3, motorvej og offentlig transport. Det er nemt at komme til og fra arbejdet, hvilket gør det til et attraktivt sted at etablere jeres virksomhed. Desuden er den nye letbane lige rundt om hjørnet, hvilket gør det endnu nemmere for medarbejdere at pendle til og fra arbejdspladsen. Lejemålets energimærke er angivet til: C
Flere detaljer



























