1502-24: Roholmsvej 15C, st. - 1069 m2
71.267 kr.
Beboelsesvogne fra Simple Homes
Udlejning til bl.a. privatgenhusning - høj service og hurtig levering
UDLEJNING AF BEBOELSESVOGNE
Vi udlejer vogne, lifte, Mobile badeværelser, Mandskabsvogne og Kontor-/spisevogne
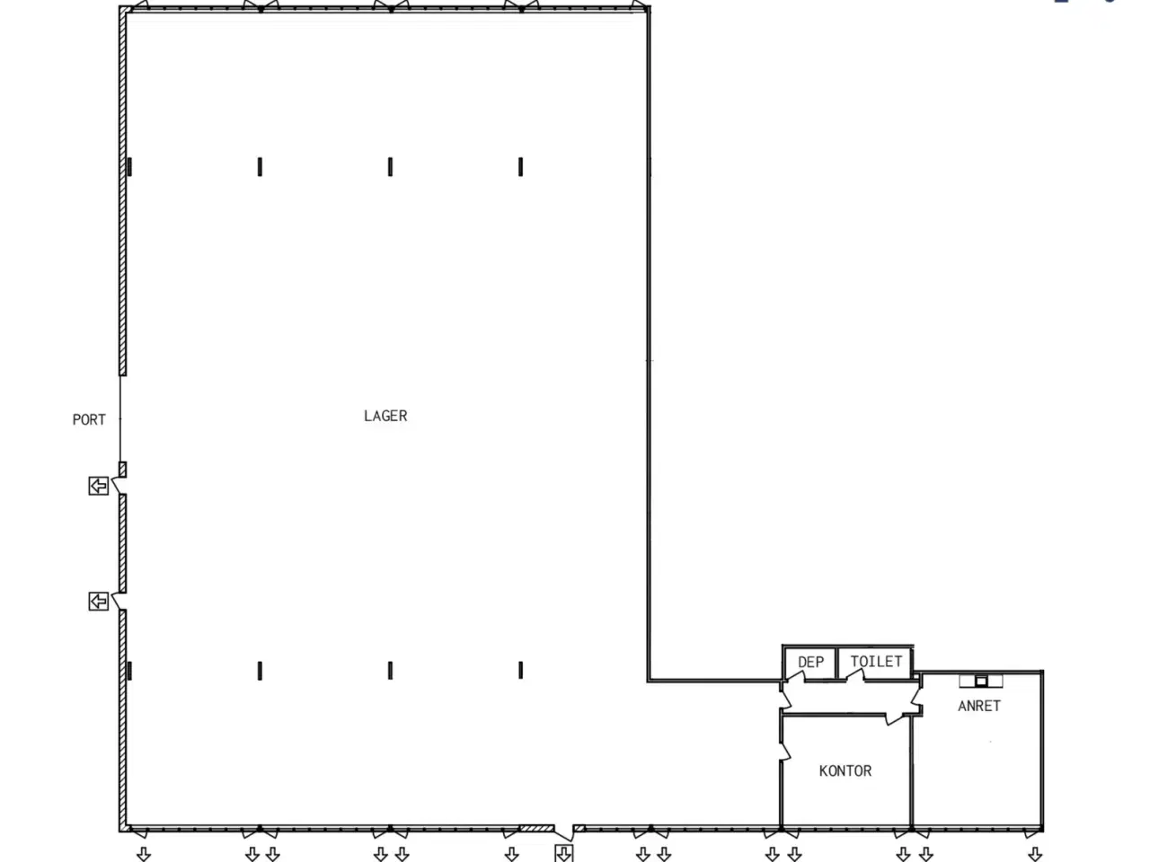
På Roholmsvej 15C i Albertslund udbydes et markant og funktionelt erhvervslejemål på i alt 1.069 m², bestående af rummeligt lager- og produktionsareal med tilhørende kontorfaciliteter. Lagerhallen er opført med karakteristiske limtræsbuer, der skaber et lyst og åbent miljø samt giver god spændvidde. Loftshøjden er 6 meter på midten og 2,8 meter ved facaden, hvilket sikrer fleksible anvendelsesmuligheder. Der er adgang via tre porte, som giver gode muligheder for effektiv varehåndtering og logistik. Indretningen kan eventuelt tilpasses den kommende lejers ønsker, så der etableres moderne og funktionelle arbejdspladser i direkte tilknytning til lagerdelen. Ejendommen har gode tilkørselsforhold for både personbiler og lastbiler samt fine parkeringsmuligheder på ejendommen. Beliggenheden giver hurtig adgang til Ring 4, Holbækmotorvejen og Motorring 3, hvilket sikrer effektiv transport til både København og resten af Sjælland. Lejemålet er oplagt til virksomheder, der ønsker at samle lager, produktion og administration under ét tag i præsentable rammer.
Flere detaljer
Om boligen
- Produkttype
- Erhvervslokaler












Ny





