Lyst og velbeliggende kontor
10.800 kr.
Beboelsesvogne fra Simple Homes
Udlejning til bl.a. privatgenhusning - høj service og hurtig levering
UDLEJNING AF BEBOELSESVOGNE
Vi udlejer vogne, lifte, Mobile badeværelser, Mandskabsvogne og Kontor-/spisevogne
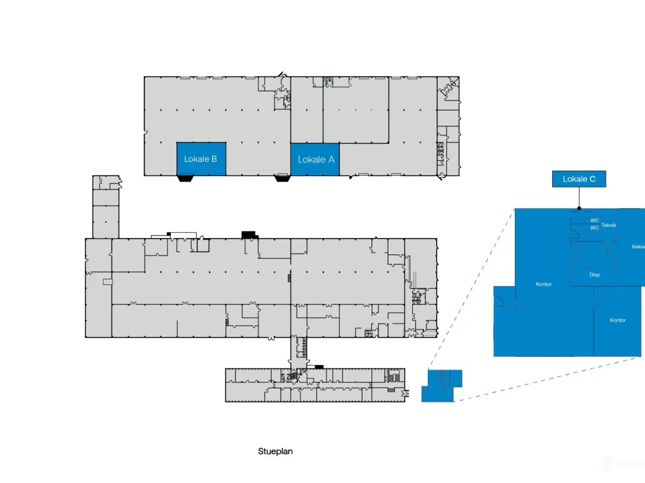
Her udbydes et kontor på 162 m² beliggende i stuen. Det er indrettet med åbent kontorlandskab, stort mødelokale, hyggeligt loungeområde, spiseområde med køkken og toiletfaciliteter. Lokalerne er lyse og tidssvarende med et godt lysindfald og giver gode rammer for både medarbejdere og gæster.Perfekt til virksomheder, der søger et professionelt og komfortabelt arbejdsmiljø. Roskildevej 8-10 er beliggende i et veletableret erhvervsområde med en strategisk beliggenhed på 15 km fra Københavns centrum. Ejendommen er beliggende i 3,5 km fra motorvejsafkørsel til E47, 3.2 km fra O4 og 20 min. gågang fra den nye letbane. Lejemålets energimærke er angivet til: B
Flere detaljer
Om boligen
- Produkttype
- Erhvervslokaler






















