Lager-og kontorlokaler med indhegnet gårdareal
140.104 kr.
Beboelsesvogne fra Simple Homes
Udlejning til bl.a. privatgenhusning - høj service og hurtig levering
UDLEJNING AF BEBOELSESVOGNE
Vi udlejer vogne, lifte, Mobile badeværelser, Mandskabsvogne og Kontor-/spisevogne
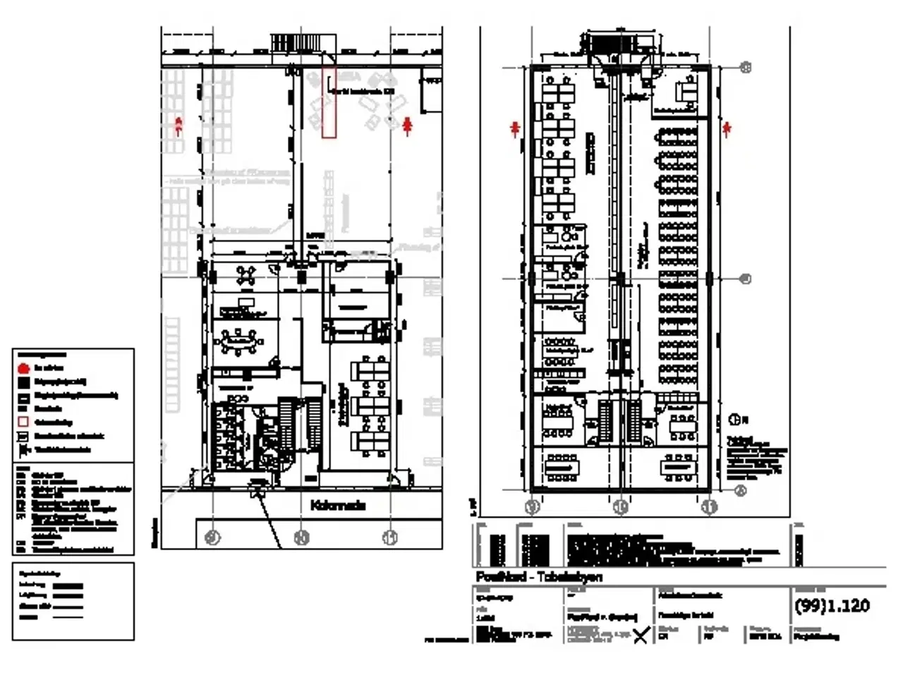
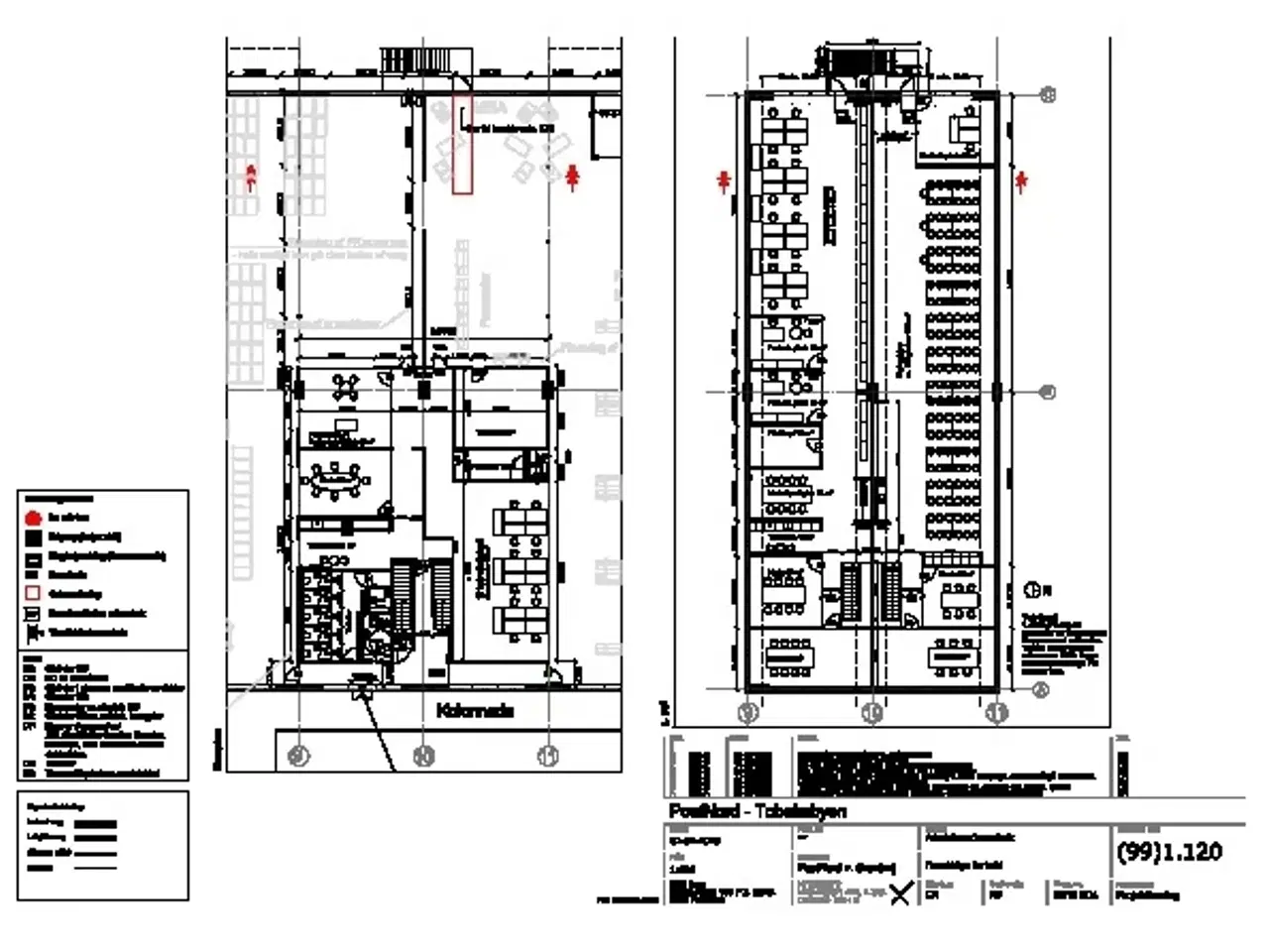
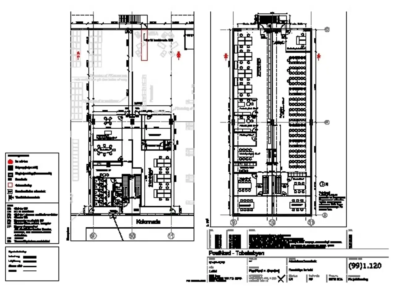
Ejendommen blev opført i 1951 og gennemgik en renovering i 2015. Det ledige lejebærende areal udgør 10.911m2bestående af både lager, kælder, kontor og indhegnet gårdareal. Der udbydes lagerlokaler, kælder og kontorlokaler i ejendommen. Lagerlokalerne har et lejebærende areal på 5.224m2, kælderen har et lejebærende areal på 826 m2 og kontorlokalerne har et lejebærende areal på 675m2. Stablehøjden i lageret er ca. 5 meter Der er 5 porte i terræn med direkte adgang til lageret og stor læserampe til to lastbiler af gangen. Til lejemålet tilhører 4.186m2 gårdareal, som er placeret foran ejendommen med rummelig og god plads til på-og aflæsning. Lager, kælder, kontor og gårdareal lejes samlet med mulighed for at tilpasse lejemålene efter behov.
Flere detaljer
















































