Åbent kontor lige ved Nørreport
49.875 kr.
Beboelsesvogne fra Simple Homes
Udlejning til bl.a. privatgenhusning - høj service og hurtig levering
UDLEJNING AF BEBOELSESVOGNE
Vi udlejer vogne, lifte, Mobile badeværelser, Mandskabsvogne og Kontor-/spisevogne
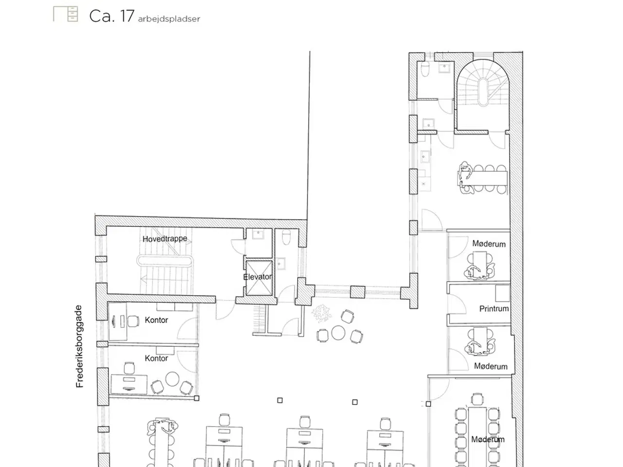
I denne smukke og historiske ejendom fra 1881 udbydes nu et kontorlejemål på 285 m² beliggende på ejendommens 3. sal. Ejendommens indgangsparti fremstår præsentabelt og indbydende, og lejemålet kan tilgås via en nyistandsat trappeopgang eller elevator. Lejemålet har en effektiv og funktionel planløsning med et åbent storrumsmiljø, der giver fleksible muligheder for indretning af arbejdspladser. Herudover rummer lejemålet to mindre kontorer, tre mødelokaler – hvoraf det største har plads til op til 16 personer – et rummeligt kantineområde samt to toiletter. Infrastrukturen med offentlig transport ved Nørreport Station er topklasse. Herfra er der adgang til metro, et omfattende netværk af S-togsforbindelser, regionaltog samt adskillige buslinjer. Kongens Nytorv er blot ét metrostop væk og giver nem adgang til Cityringen. Parkering er tilgængelig kun 200 meter fra ejendommen ved Israels Plads, hvor der er mulighed for parkering på fast basis eller timebasis. HIGHLIGHTS - God planløsning - 3 mødelokaler - Fantastisk lys og udsigt over København - Elevator Lejemålets energimærke er angivet til: C
Flere detaljer






















