Nyrenoverede kontorer med parkering og tagterasse. tæt på Kgs. Nytorv
172.125 kr.
Beboelsesvogne fra Simple Homes
Udlejning til bl.a. privatgenhusning - høj service og hurtig levering
UDLEJNING AF BEBOELSESVOGNE
Vi udlejer vogne, lifte, Mobile badeværelser, Mandskabsvogne og Kontor-/spisevogne
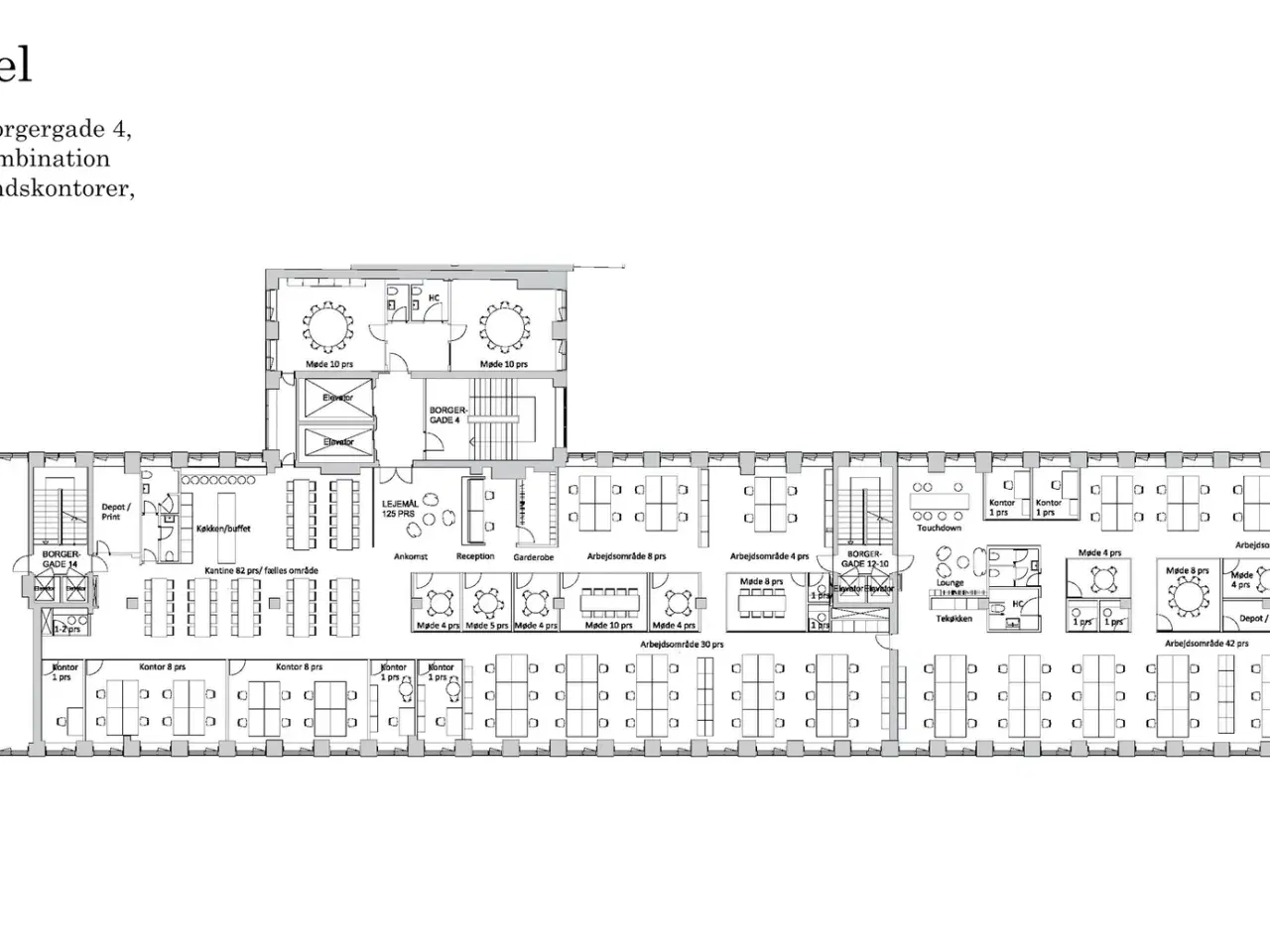
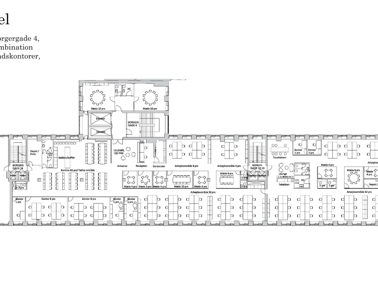
I én af Københavns største, sammenhængende ejendomme, Borgergadehus, der rummer ca. 24.000 m² erhvervslejemål, udbydes effektive, nyrenoverede og indrettede kontorer. - Kontorlejemål á 1.200 m² op til 5.600 m² - (Mulighed for yderligere op til ca. 3.000 m²) - Effektive, regulære og fleksible arealer - Store etager (op til ca. 2.500 m² på én etage) - Central beliggenhed med gode tilkørselsforhold - Kan nyindrettes og istandsættes for kommende lejere - Mulighed for komfort-køl og ventilation - Energimærke ”B” - Person- og vare-elevatorer (handicapadgang) - Mulighed for parkering i ejendommens gård/kælder - Adgang til indre Kbh’s måske højest beliggende tagterrasse - Markant ejendom på 24.000 m² giver mulighed for udvidelse - På gå-ben: 2 min til Kgs Nytorv Metro, 8 min. til Nørreport Station Masser af mulige areal-kombinationer og indgang fra forskellige opgange i ejendommen. Kontakt os for at høre nærmere herom. Lejemålets energimærke er angivet til: B
Flere detaljer
























