3 MÅNEDERS LEJEFRIHED
89.900 kr.
Beboelsesvogne fra Simple Homes
Udlejning til bl.a. privatgenhusning - høj service og hurtig levering
UDLEJNING AF BEBOELSESVOGNE
Vi udlejer vogne, lifte, Mobile badeværelser, Mandskabsvogne og Kontor-/spisevogne
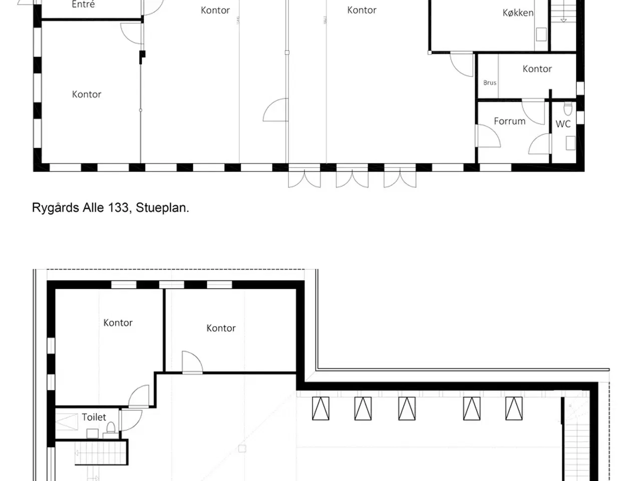
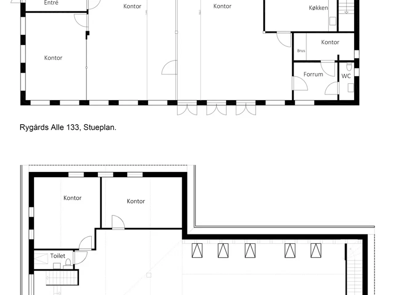
På Rygårds Allé 133 får jeres virksomhed en sjælden mulighed for at leje en hel, selvstændig ejendom i det eftertragtede Hellerup – nyistandsat og klar til indflytning. Lejemålet overtages med indretning og aptering efter aftale, så rammerne skræddersyes til netop jeres behov og visuelle identitet. Som en ekstra fordel råder ejendommen over et privat parkeringsareal med ca. 14 pladser – en sjælden luksus i centralt Hellerup, der sikrer nem adgang for både medarbejdere og gæster. Med 696 m² fordelt på to etager er der rig mulighed for at skabe et effektivt, inspirerende og repræsentativt arbejdsmiljø. Her kombineres en præsentabel facade med lyse, rummelige lokaler og en beliggenhed i særklasse. ** Beliggenhed med ro og nærhed** Ejendommen ligger i et fredeligt kvarter tæt på Ryvangens Naturpark, med hurtig adgang til både offentlig transport, motorvej og København centrum. Her får I arbejdsro i hverdagen - uden at give afkald på byens puls. Lejemålets energimærke er angivet til: C
Flere detaljer






















