Nyistandsat kontor med fritlagte bjælker og ny behandlede trægulve
29.400 kr.
Beboelsesvogne fra Simple Homes
Udlejning til bl.a. privatgenhusning - høj service og hurtig levering
UDLEJNING AF BEBOELSESVOGNE
Vi udlejer vogne, lifte, Mobile badeværelser, Mandskabsvogne og Kontor-/spisevogne
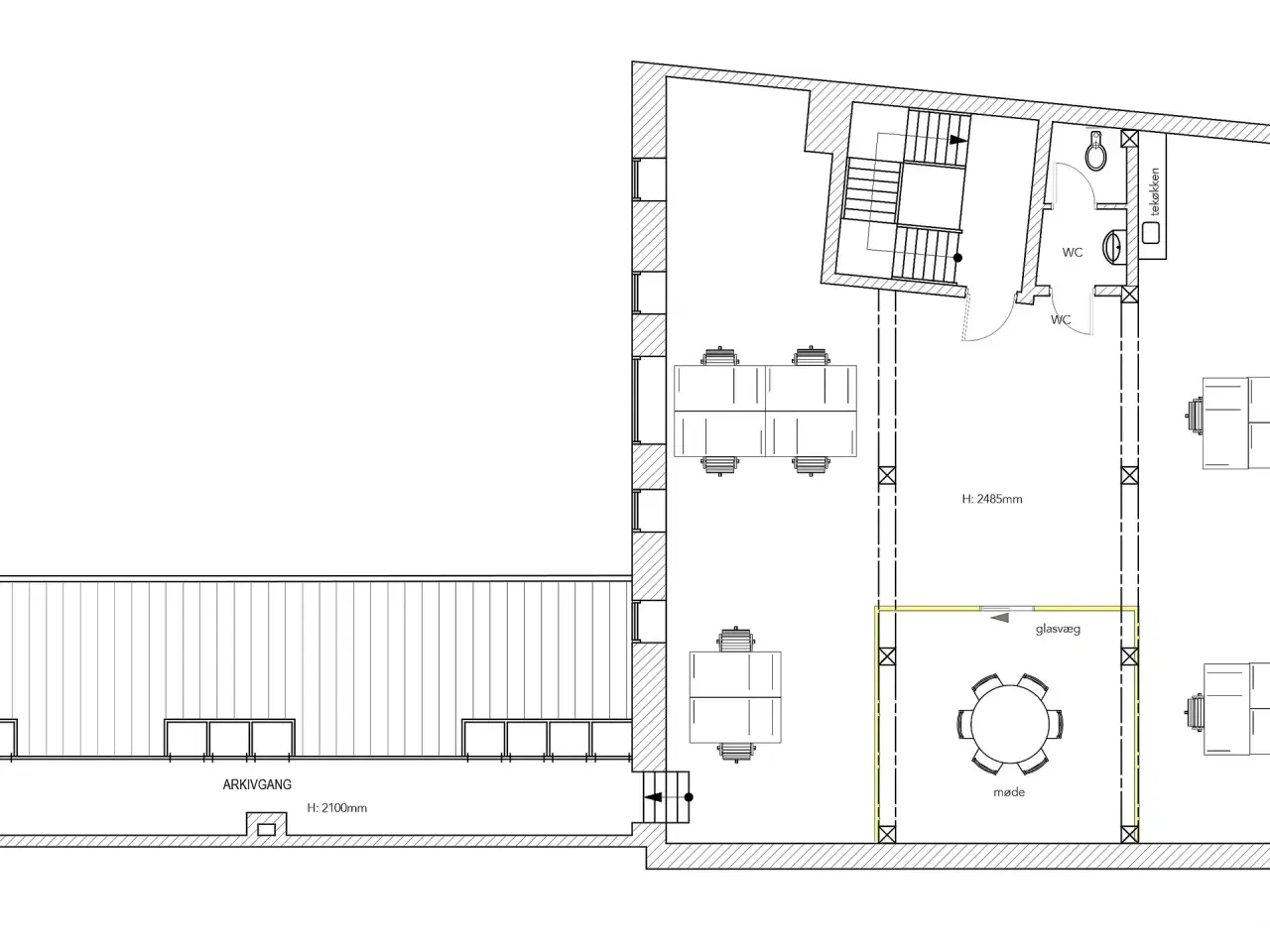
Ejendommen er opført i 1807 som pakhus til grosserer From. Ejendommen er opført i 4 etager og med udnyttet tagetage. Ejendommen er opført i mursten og er pudset i rød nuance mod Toldbodgade, mens ejendommen er hvidpudset mod gården. Ejendommens stueetage og 1. sal er udlejet til MACA Museum, som er drevet af Nigel Mead. MACA Museum har fokus på kunstnere fra 1900-tallet og dette århundrede, og første udstilling viser en lang række eksempler på Street Art og graffiti, som opstod i USA omkring 1980. Huset har en meget fin generel anvendelighed og udstrakt fleksibilitet, så virksomhedernes indretningsbehov i vid udstrækning kan imødekommes. Lejemålet er beliggende på 2. sal og er indrettet som et stort åbent rum med en god udnyttelse af kvadratmeterne. Der kan således placeres op mod 16 arbejdspladser. Der er tillige mulighed for at etablere et møderum. Der er ny toiletkerne med væghængt toilet. Der bliver opsat helt nyt køkken med hårde hvidevarer. Et lejemål der er velegnet til den kreative virksomhed. Lejemålets energimærke er angivet til: D
Se annoncen hos forhandlerenFlere detaljer























