Regulært lejemål med lager og kontor
Sælges
Beboelsesvogne fra Simple Homes
Udlejning til bl.a. privatgenhusning - høj service og hurtig levering
UDLEJNING AF BEBOELSESVOGNE
Vi udlejer vogne, lifte, Mobile badeværelser, Mandskabsvogne og Kontor-/spisevogne
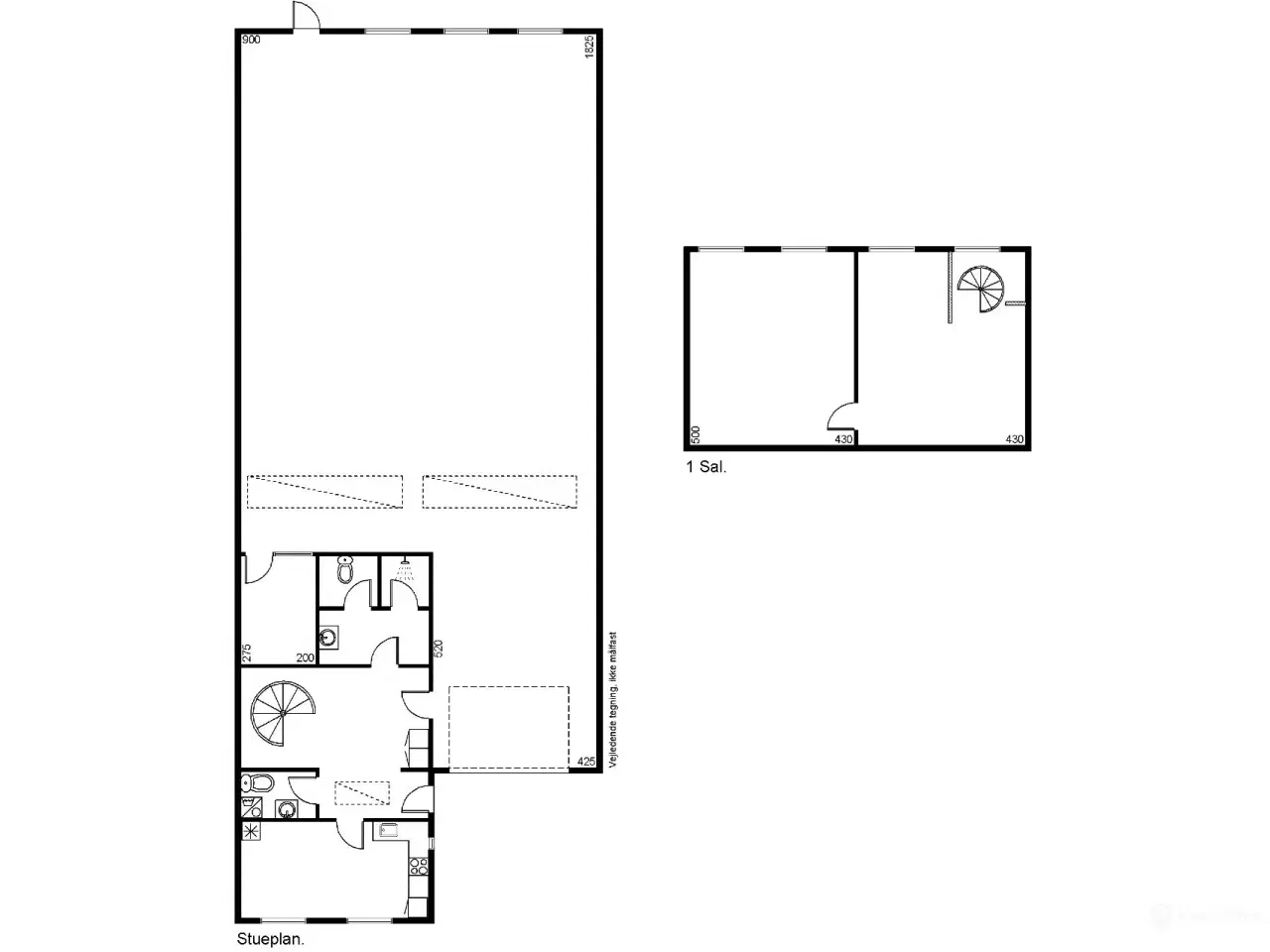
Super anvendeligt lejemål beliggende i Roskilde Øst - tæt til motorvejsnettet. Placeret i større ejendom med i alt 10 lejemål. Grunden er hegnet og har port, der lukkes om natten. Stenbelagt grund med gode parkeringsforhold. De pladser der er ud foran eget lejemål kan anvendes af lejer. Lejemålet er indrettet med indgangsparti med spindeltrappe til 1. salen. Kundetoilet samt endnu et toilet med bad. Køkken/personalerum. På 1. salen er der åbent kontormiljø samt større kontor/møderum. Indgang til hallen kan ske direkte fra kontorafsnittet eller udefra, enten via dør eller port. Hallen er højloftet og meget lys, da der er vinduer i både mur samt ovenlysvinduer. Adgang til mindre rum, der kan anvendes til f.eks. teknik eller aflåst depot. Lejemålet overtages med nymalede vægge og nymalet gulv i lagerdelen.
Flere detaljer
