Bliv en del af B!NGS – dynamisk kontorhus på Vesterbro
39.333 kr.
Beboelsesvogne fra Simple Homes
Udlejning til bl.a. privatgenhusning - høj service og hurtig levering
UDLEJNING AF BEBOELSESVOGNE
Vi udlejer vogne, lifte, Mobile badeværelser, Mandskabsvogne og Kontor-/spisevogne
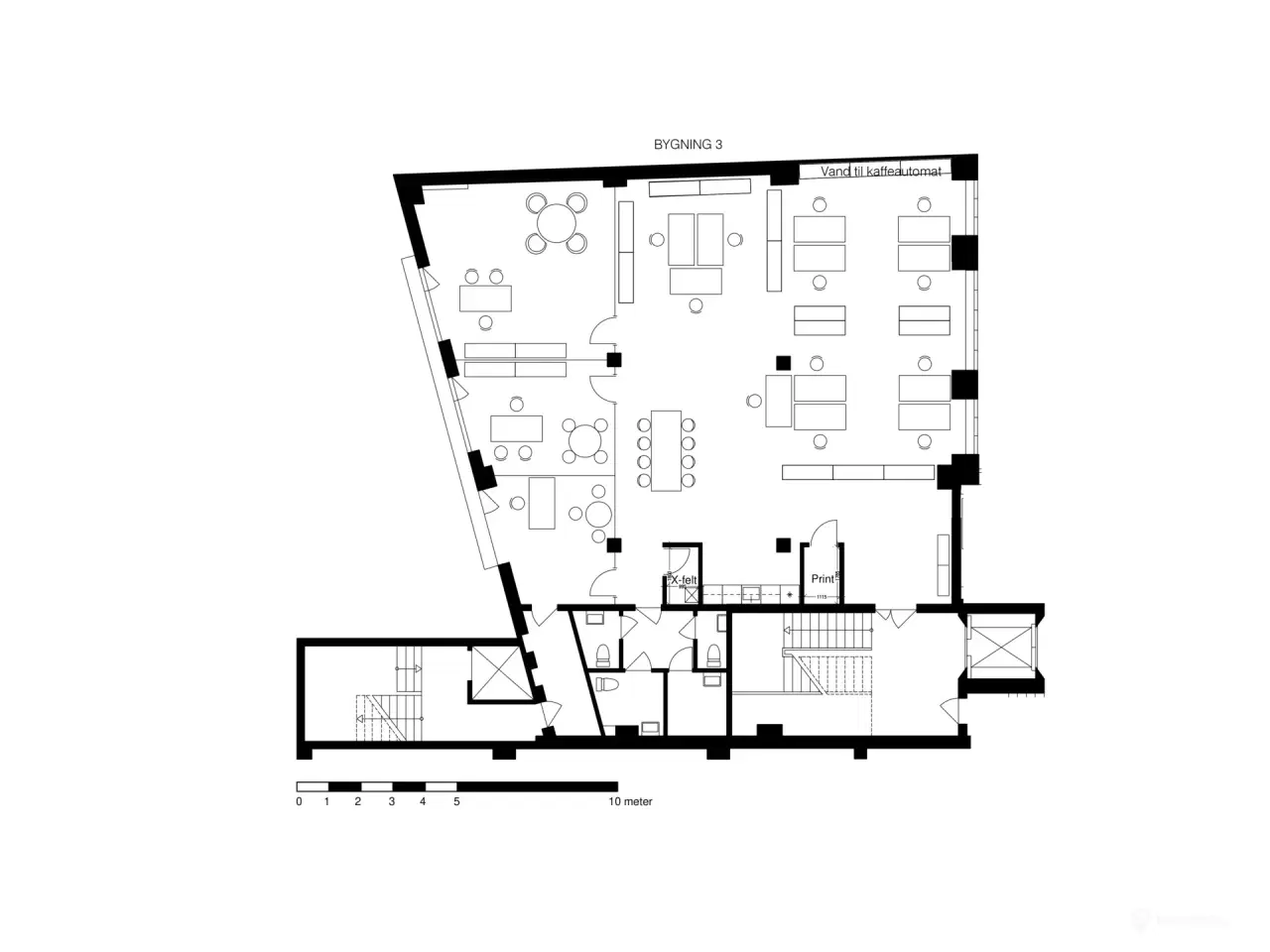
**Lyst og højloftet kontor med adgang til B!NGS attraktive fællesfaciliteter** Midt i hovedbygningen gemmer sig denne perle – et lejemål med nogle af de mest effektive kvadratmeter på hele Vesterbro. Det højloftede rum skaber en fantastisk rumfornemmelse, og de store vinduespartier lukker lyset ind i hele lokalet. Glasdøre mellem møderum og lounge ved tekøkkenet sikrer, at lyset flyder frit og understøtter en åben og inspirerende atmosfære. Med adgang til B!NGS’ attraktive fællesfaciliteter er dette det perfekte match for virksomheder, der ønsker at tilbyde deres medarbejdere moderne, lyse og fleksible rammer. Når det er frokosttid kan medarbejderne gå ned i den fremragende kantine som er blandt de bedste i byen og tilmed fornuftig i pris. **B!NGS: Fra porcelænsfabrik til moderne kontorhus** B!NGS er et dynamisk kontorhus på Vesterbro i et historisk ejendomskompleks, som i sin tid tilhørte porcelænsfabrikken Bing & Grøndahl. Kontorejendommen består af 12 bygninger på i alt 25.000 m² med lejemål i flere forskellige bygninger, som danner rammerne om et kreativt og inspirerende arbejdsmiljø. Multibrugerhuset fungerer som et business center med fællesfaciliteter for husets lejere. Konceptet bygger på professionel service og stor fleksibilitet, hvor den enkelte virksomhed kan udvide eller reducere efter behov. Som lejer flytter man ind i et professionelt og dynamisk miljø og få en komplet pakke af services såsom fælles reception, møde og konferencefaciliteter, restaurant med frokostordning og kontorer i høj kvalitet. Ejendommen råder over et kontrolleret parkeringsanlæg med 200 p-pladser på ejendommens areal, som lejes separat. Lejemålets energimærke er angivet til: B
Se annoncen hos forhandlerenFlere detaljer





































