Højloftet erhvervslejemål med udsigt til bugten
59.583 kr.
Beboelsesvogne fra Simple Homes
Udlejning til bl.a. privatgenhusning - høj service og hurtig levering
UDLEJNING AF BEBOELSESVOGNE
Vi udlejer vogne, lifte, Mobile badeværelser, Mandskabsvogne og Kontor-/spisevogne
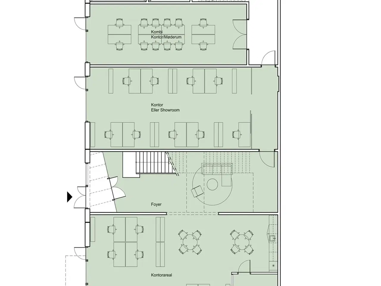
**Stemningsfuldt kontor ved Aarhus Havn** I dette kontorlejemål på 715 m² på Mellemarmen får du en sjælden kombination af volume, lys og karakter. De rå betonvægge, synlige installationer og høje lofter skaber en industriel stemning, hvor bygningens historie fortsat kan mærkes. I stueplan finder du et indbydende indgangsparti, åbent kontorlandskab og fleksible rum i glas, der egner sig til møder eller showroom. På første sal er der åbent kontormiljø, personalerum og toiletter – alt holdt i samme enkle og robuste materialer. Lyset fra de store vinduer giver rummet liv og energi, og fra alle sider er der udsigt mod Aarhus Bugten eller havnemiljøet. Mulighed for leje af parkeringsforhold lige ved døren. Ejendommene på Mellemarmen er en del af et levende havnemiljø, hvor mode-, design- og produktionsvirksomheder i mange år har haft deres base. Arkitekturen er rå og enkel med respekt for de oprindelige industrielle bygninger, og interiøret er præget af gode materialer og gedigne detaljer. Her får du både plads og autenticitet – et miljø, der inspirerer til kreativitet og samarbejde. **Lejemålet er betinget af Aarhus Havns godkendelse, lejemålet skal benyttes til havnerelateret virksomhed med søværts omsætning over Aarhus Havn.** Lejemålets energimærke er angivet til: B
Se annoncen hos forhandlerenFlere detaljer
Om boligen
- Produkttype
- Erhvervslokaler



























