48 kvm. butik/frisør/klinik i hyggelig gade. København K
6.750 kr.
Beboelsesvogne fra Simple Homes
Udlejning til bl.a. privatgenhusning - høj service og hurtig levering
UDLEJNING AF BEBOELSESVOGNE
Vi udlejer vogne, lifte, Mobile badeværelser, Mandskabsvogne og Kontor-/spisevogne
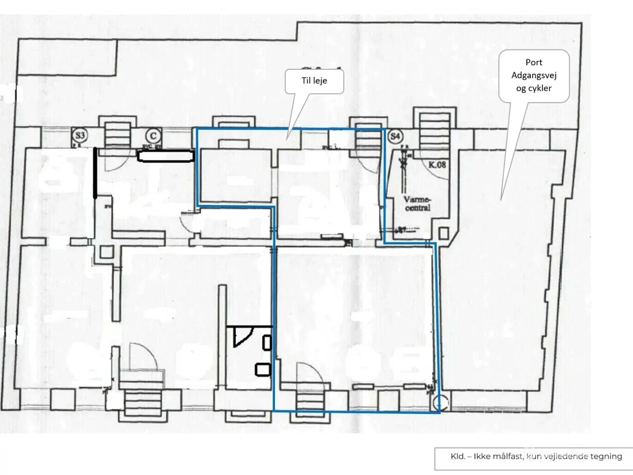
Denne smukke ejendom ligger i Peder Hvitfeldts Stræde, hvor der er flere frisører og skønhedsklinikker, samt vintagebutikker og cafeér tæt på. Rundt om hjørnet ligger Københavns Hovedbibliotek til den ene side og den travle Købmagergade til den anden side. Det er en hyggelig og kort gåtur hertil fra Nørreport Station, og selvom Peder Hvitfeldts Stræde er en pæn og rolig gade, så har man en god følelse af, at man er i byen, hvor tingene sker – tæt på alt. Lejemålet har to vinduer og en glasdør mod gaden, samt mulighed for elegant skiltning på facaden i stil med den nuværende skiltning. Indretningen består af tre rum, hvoraf det største er mod gaden og de to andre er mod gården. Det mindste rum mod gården er indrettet til tekøkken og let lager, og dette rum er lidt lavloftet til gårdsiden pga., at det ligger under husets bagtrappe. Lejemålet er hyggeligt og meget charmerende. Toilet til lejemålet findes i gården, og du kan parkere din cykel bag den låste port til ejendommen. Lejemålet overtages ryddet og rengjort, samt nymalet på vægge, lofter m.m., og den nuværende lejers egen belysning, inventar m.m. fjernes, hvorefter ny lejer kan montering sin egen belysning. Dette lejemål har været anvendt til frisør uafbrudt de seneste 14 år. Lejemålet er velegnet til f.eks. vintagebutik, specialforretning, kosmetolog, frisør, ansigtsbehandling, fodterapeut eller anden terapi/behandling. Lejemålets energimærke er angivet til: D
Se annoncen hos forhandlerenFlere detaljer
Om boligen
- Produkttype
- Erhvervslokaler















